店舗・事務所(区分)|テナント
ラシュール・イン大橋Ⅱ
| 賃料・費用 |
34万5,000円
(+管理費等 なし)
坪単価:約1.2万円/坪
敷156万8,185円礼なし仲34万5,000円
|
|---|---|
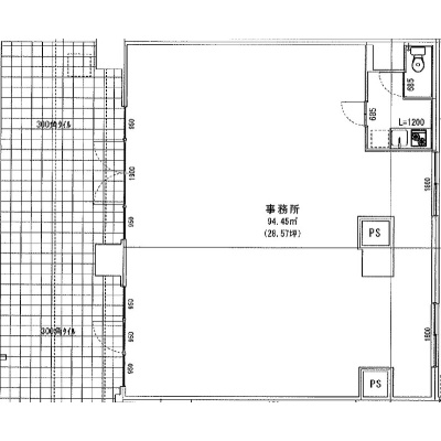
| 専有面積 | 94.45m² (28.57坪) |
| 住所 | 福岡県福岡市南区大橋3-31-20 |
| 交通 | 大橋駅(徒歩12分)|井尻駅(徒歩23分)道順を見る |
| 階/階建 | 1階 / 11階建 |
| 築年月 | 建築中(2026年3月完成予定) |
| 駐車場 |
あり (1万3,200円/台)
|
空室確認、見学、詳細を知りたい方はこちら!
お電話の際は「連合隊の物件」とお伝えください。
092-407-6006
情報掲載期限:あと6日(更新日 2026/1/21)
- 物件写真・概要
- 周辺地図
-
空室確認、見学、詳細を知りたい方はこちら!
おすすめポイント
- 駐車場あり
- 出店するなら…この業種がおすすめ!
- 飲食全般(重飲食含む)

- 喫茶・カフェ(軽飲食)

- バー・クラブ・スナック

- 小売・物販

- 美容・健康・介護

- 医療

- 教育・スクール

- 事務所

- アミューズメント

交通色がついているアイコンをクリックすると、本物件までの道順を見ることができます。
物件概要
所在階/建物の階建 1階 / 地上11階建 主要採光面 構造 鉄筋コンクリート(RC)造 間取り 契約期間 2年間 権利金 住宅保険 出店推奨業種 美容・健康・介護、医療、事務所 出店不可業種 引渡し 2026年3月中旬 管理人 取引態様 仲介 物件No 設備・特徴 備考 主な周辺施設色がついているアイコンをクリックすると、本物件までの道順を見ることができます。
-
※連合隊は物件情報の精度向上に努めています:「物件情報に誤りがある」「成約済みである」などお気付きの点がございましたらこちらよりご連絡ください。
写真枚数:2枚
福岡・博多の物件探しはFUKUOKA ASSETS PROJECTへ!
売買・賃貸それぞれの専門スタッフが、あなたのご要望にお応えいたします‼ まずはお気軽にご相談ください‼