Y’s GARDEN伊都
この物件の契約期間は 10年間です。
定期借家物件は、賃貸借契約期間満了後、原則として契約の更新ができない物件です。再契約の可否については不動産会社にお問合せください。
| 賃料・費用 |
83万9,900円
(+管理費等 -円)
坪単価:約1.2万円/坪
敷458万1,720円礼なし仲83万9,900円
|
|---|---|
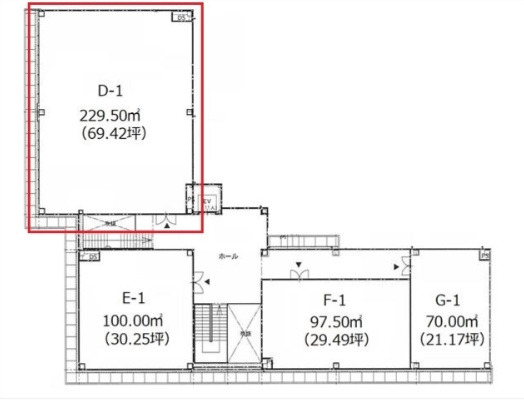
| 専有面積 | 229.5m² (69.42坪) |
| 住所 | 福岡県福岡市西区北原1-9-7 |
| 交通 | 九大学研都市駅(徒歩6分)|周船寺駅(徒歩20分)|今宿駅(徒歩23分)道順を見る |
| 階/階建 | 2階 / 2階建 |
| 築年月 | 築16年(2009年11月) |
| 駐車場 |
あり (無料)
お客用共用駐車場 |
空室確認、見学、詳細を知りたい方はこちら!
お電話の際は「連合隊の物件」とお伝えください。
情報掲載期限:あと27日(更新日 2026/5/15)
- 物件写真・概要
- 周辺地図
-
空室確認、見学、詳細を知りたい方はこちら!
おすすめポイント
- 駐車場あり
- スケルトン
- 出店するなら…この業種がおすすめ!
- 飲食全般(重飲食含む)

- 喫茶・カフェ(軽飲食)

- バー・クラブ・スナック

- 小売・物販

- 美容・健康・介護

- 医療

- 教育・スクール

- 事務所

- アミューズメント

交通色がついているアイコンをクリックすると、本物件までの道順を見ることができます。
物件概要
所在階/建物の階建 2階 / 地上2階建 主要採光面 構造 鉄骨造 間取り 契約期間 定期借家(10年間) 権利金 住宅保険 出店推奨業種 飲食全般(重飲食含む)、小売・物販、医療 出店不可業種 用途地域 - 準住居地域
引渡し 2026年5月初旬 管理人 取引態様 仲介 物件No 設備・特徴 - スケルトン
備考 主な周辺施設色がついているアイコンをクリックすると、本物件までの道順を見ることができます。
-
※連合隊は物件情報の精度向上に努めています:「物件情報に誤りがある」「成約済みである」などお気付きの点がございましたらこちらよりご連絡ください。
写真枚数:7枚
福岡・博多の物件探しはFUKUOKA ASSETS PROJECTへ!
売買・賃貸それぞれの専門スタッフが、あなたのご要望にお応えいたします‼ まずはお気軽にご相談ください‼