鶴田ビル
ここに注目!福岡市中央区天神に、新しいビジネスチャンスを掴む理想のオフィス・店舗物件が登場しました!福岡市営地下鉄空港線「天神」駅から**徒歩3分**という**抜群のアクセス**は、お客様にとっても従業員様にとっても大変魅力的。複数路線が利用でき、毎日の通勤もスムーズです。 広々とした専有面積281.27m²の1階から5階部分で、内装はスケルトン渡しなので、お客様のビジネスに合わせた自由な空間づくりが可能です。小売・物販、美容・健康・介護、医療といった幅広い業種におすすめ。周辺には飲食店やコンビニ、ショッピング施設が充実しており、ビジネスを強力にサポートする環境が整っています。 礼金は0円というのも嬉しいポイント。天神の中心で、あなたの夢を形にしませんか?この素晴らしい立地で、新たな一歩を踏み出しましょう!
この物件の契約期間は 10年間です。
定期借家物件は、賃貸借契約期間満了後、原則として契約の更新ができない物件です。再契約の可否については不動産会社にお問合せください。
| 賃料・費用 |
132万円
(+管理費等 -円)
坪単価:約1.6万円/坪
敷1,500万円礼なし仲132万円
|
|---|---|
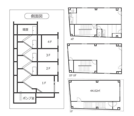
| 専有面積 | 281.27m² (85.08坪) |
| 住所 | 福岡県福岡市中央区天神3-3-2 |
| 交通 | 天神駅(徒歩3分)|西鉄福岡(天神)駅(徒歩6分)|天神南駅(徒歩9分)道順を見る |
| 階/階建 | 1階 / 5階建 |
| 築年月 | 築42年(1983年10月) |
| 駐車場 |
なし
|
空室確認、見学、詳細を知りたい方はこちら!
お電話の際は「連合隊の物件」とお伝えください。
情報掲載期限:あと20日(更新日 2026/3/23)
- 物件写真・概要
- 周辺地図
-
空室確認、見学、詳細を知りたい方はこちら!
おすすめポイント
- 駅徒歩3分以内
- スケルトン
- 出店するなら…この業種がおすすめ!
- 飲食全般(重飲食含む)

- 喫茶・カフェ(軽飲食)

- バー・クラブ・スナック

- 小売・物販

- 美容・健康・介護

- 医療

- 教育・スクール

- 事務所

- アミューズメント

交通色がついているアイコンをクリックすると、本物件までの道順を見ることができます。
物件概要
所在階/建物の階建 1階 / 地上5階建 主要採光面 構造 鉄骨鉄筋コンクリート(SRC)造 間取り 契約期間 定期借家(10年間) 権利金 住宅保険 出店推奨業種 小売・物販、美容・健康・介護、医療 出店不可業種 引渡し 相談 管理人 取引態様 仲介 物件No 設備・特徴 - スケルトン
備考 主な周辺施設色がついているアイコンをクリックすると、本物件までの道順を見ることができます。
-
※連合隊は物件情報の精度向上に努めています:「物件情報に誤りがある」「成約済みである」などお気付きの点がございましたらこちらよりご連絡ください。
写真枚数:2枚
福岡・博多の物件探しはFUKUOKA ASSETS PROJECTへ!
売買・賃貸それぞれの専門スタッフが、あなたのご要望にお応えいたします‼ まずはお気軽にご相談ください‼