日大ビル
ここに注目!駐車場複数台契約可☆銀行も近く便利な事務所物件です(*^-^*)
| 賃料・費用 |
15万6,200円
(+管理費等 3万6,520円)
坪単価:約6,602円/坪
敷85万2,000円礼15万6,200円(1ヶ月)仲15万6,200円
|
|---|---|
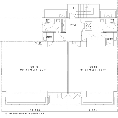
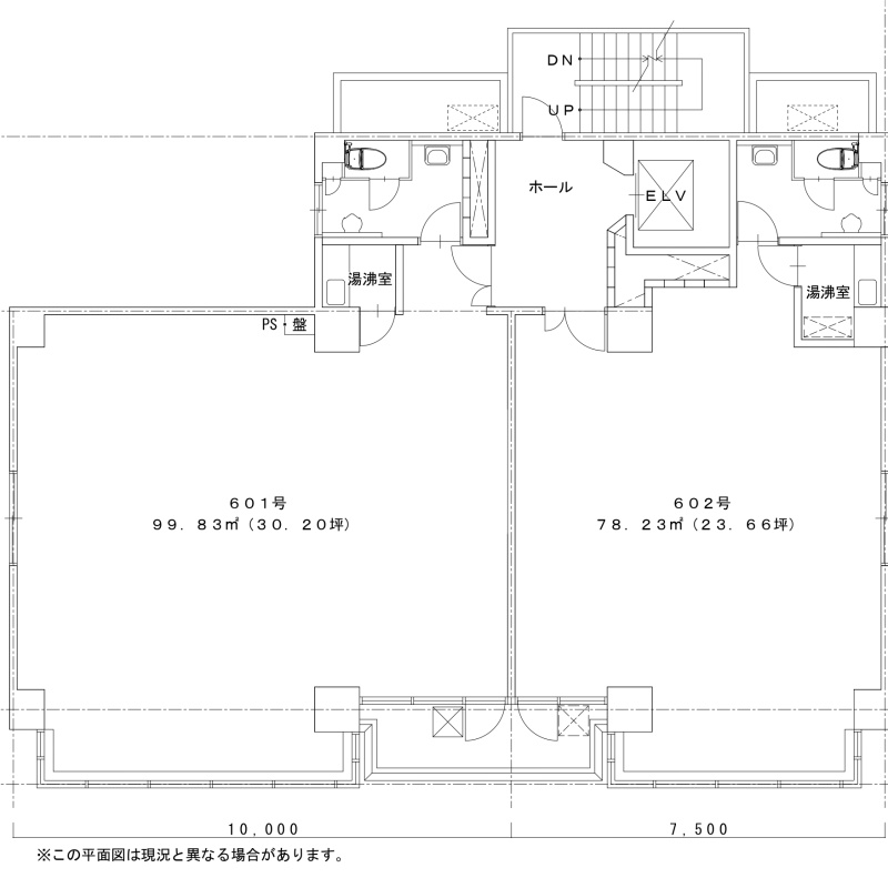
| 専有面積 | 78.23m² (23.66坪) |
| 住所 | 福岡県福岡市博多区美野島2-16-8 |
| 交通 | 竹下駅(徒歩23分)|渡辺通駅(徒歩22分)|西鉄平尾駅(徒歩18分)道順を見る |
| 階/階建 | 5階 / 9階建 |
| 築年月 | 築41年(1984年3月) |
| 駐車場 |
あり (1万5,400円/台)
|
空室確認、見学、詳細を知りたい方はこちら!
お電話の際は「連合隊の物件」とお伝えください。
情報掲載期限:あと10日(更新日 2025/12/24)
- 物件写真・概要
- 周辺地図
-
空室確認、見学、詳細を知りたい方はこちら!
おすすめポイント
- 即入居可
- 幹線道路沿い
- 駐車場あり
- エアコン付
- OAフロア
- 袖看板あり
- 出店するなら…この業種がおすすめ!
- 飲食全般(重飲食含む)

- 喫茶・カフェ(軽飲食)

- バー・クラブ・スナック

- 小売・物販

- 美容・健康・介護

- 医療

- 教育・スクール

- 事務所

- アミューズメント

※出店不可の業種:飲食全般、水商売、美容・理容、アミューズメント、重飲食(軽飲食は相談可)
交通色がついているアイコンをクリックすると、本物件までの道順を見ることができます。
物件概要
所在階/建物の階建 5階(502) / 地上9階建 主要採光面 南 構造 鉄骨鉄筋コンクリート(SRC)造 間取り 契約期間 2年間 権利金 住宅保険 出店推奨業種 事務所 出店不可業種 飲食全般、水商売、美容・理容、アミューズメント、重飲食(軽飲食は相談可) 用途地域 - 商業地域
引渡し 即時 管理人 取引態様 仲介 物件No 設備・特徴 - 幹線道路沿い
- エレベーター
- 照明器具付
- OAフロア
- 給排水設備
- エアコン付
- 個別空調
- 袖看板あり
備考 駐車場複数台契約可☆銀行も近く便利な事務所物件です(*^-^*) 主な周辺施設色がついているアイコンをクリックすると、本物件までの道順を見ることができます。
-
※連合隊は物件情報の精度向上に努めています:「物件情報に誤りがある」「成約済みである」などお気付きの点がございましたらこちらよりご連絡ください。
写真枚数:16枚
福岡の居抜き物件|福岡のテナント探し|福岡の貸事務所なら!!ゆうゆう不動産へ!!
福岡市中央区高砂にある不動産やさんです(*^^*)福岡の居抜き物件・福岡のテナント物件、貸事務所はもちろん、住居賃貸、売買もやっています(。☌ᴗ☌。)不動産に関する事なら、何でもお気軽にお問い合わせ下さい♪