No.R 中洲
ここに注目!中洲テナントビル ワンフロアテナント 【軽飲食(BARなど)相談可】
この物件の契約期間は 3年間です。
定期借家物件は、賃貸借契約期間満了後、原則として契約の更新ができない物件です。再契約の可否については不動産会社にお問合せください。
| 賃料・費用 |
49万5,440円
(+管理費等 なし)
坪単価:約2.2万円/坪
敷450万4,000円礼なし仲49万5,440円
保証金:なし/敷引・償却金:なし
|
|---|---|
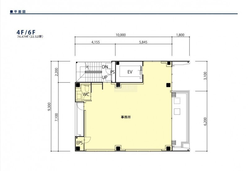
| 専有面積 | 74.47m² (22.52坪) |
| 住所 | 福岡県福岡市博多区中洲3-7-33 |
| 交通 | |
| 階/階建 | 4階 / 8階建 |
| 築年月 | 築3年(2022年1月) |
| 駐車場 |
なし
|
空室確認、見学、詳細を知りたい方はこちら!
お電話の際は「連合隊の物件」とお伝えください。
情報掲載期限:あと29日(更新日 2025/12/17)
- 物件写真・概要
- 周辺地図
-
空室確認、見学、詳細を知りたい方はこちら!
おすすめポイント
- 駅前立地
- 出店するなら…この業種がおすすめ!
- 飲食全般(重飲食含む)

- 喫茶・カフェ(軽飲食)

- バー・クラブ・スナック

- 小売・物販

- 美容・健康・介護

- 医療

- 教育・スクール

- 事務所

- アミューズメント

※出店不可の業種:重飲食(軽飲食は相談可)、水商売
物件概要
所在階/建物の階建 4階 / 地上8階建 主要採光面 構造 鉄骨造 間取り 契約期間 定期借家(3年間) 更新料/更新手数料 なし 権利金 なし 住宅保険 出店推奨業種 バー・クラブ・スナック、美容・健康・介護、事務所 出店不可業種 重飲食(軽飲食は相談可)、水商売 引渡し 相談 管理人 無 取引態様 仲介 物件No 設備・特徴 - 駅前立地
- 照明器具付
- ガス設備
- 給排水設備
- エアコン付
- 前面ガラス張り
備考 -
ホームページはこちら
福岡県知事 (2) 第18219号
(株)Ash〒810-0001
TEL:092-791-2911
FAX:092-791-2912
営業時間:9:00~18:00
定休日:毎週 土曜・日曜・祝日
※連合隊は物件情報の精度向上に努めています:「物件情報に誤りがある」「成約済みである」などお気付きの点がございましたらこちらよりご連絡ください。
写真枚数:8枚
店舗専門の不動産会社:株式会社Ash [ アッシュ不動産事務所 ]
店舗専門の不動産仲介会社です。飲食店・美容室をメインに取り扱っております。居抜相談・開業相談などもお気軽にどうぞ。経験豊富な専門スタッフが対応致します。お気軽にお問合わせください!