本町1丁目店舗
| 賃料・費用 |
15万円
(+管理費等 -円)
坪単価:約8,320円/坪
敷15万円(1ヶ月)仲15万円
|
|---|---|
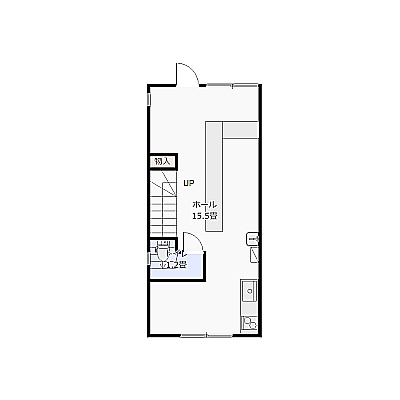
| 専有面積 | 59.62m² (18.03坪) |
| 住所 | 北海道千歳市本町1-19-2 |
| 交通 | |
| 階/階建 | 2階建 |
| 築年月 | |
| 駐車場 |
空室確認、見学、詳細を知りたい方はこちら!
お電話の際は「連合隊の物件」とお伝えください。
新着 情報掲載期限:あと29日(更新日 2026/3/18)
- 物件写真・概要
- 周辺地図
-
空室確認、見学、詳細を知りたい方はこちら!
おすすめポイント
- リフォーム済み
- 出店するなら…この業種がおすすめ!
- 飲食全般(重飲食含む)

- 喫茶・カフェ(軽飲食)

- バー・クラブ・スナック

- 小売・物販

- 美容・健康・介護

- 医療

- 教育・スクール

- 事務所

- アミューズメント

物件概要
建物の階建 地上2階建 総戸数 1戸 構造 木造 間取り 契約期間 2年間 権利金 住宅保険 出店推奨業種 飲食全般(重飲食含む)、喫茶・カフェ(軽飲食)、バー・クラブ・スナック 出店不可業種 土地面積 27.51m² (8.32坪)(公簿)接道状況 一方 用途地域 - 商業地域(建ぺい率:80% / 容積率:400%)
引渡し 相談 管理人 無 取引態様 仲介 物件No 修繕履歴 - 2026年3月頃に部分的にリフォームしています。
設備・特徴 備考 飲食店向き 給湯ボイラー交換 主な周辺施設色がついているアイコンをクリックすると、本物件までの道順を見ることができます。
-

この物件の担当者 垣崎 雅水(かきざき まさみ)
よろしくお願いいたします。
ホームページはこちら北海道知事 石狩(2) 第7995号
(株)リライフ
※連合隊は物件情報の精度向上に努めています:「物件情報に誤りがある」「成約済みである」などお気付きの点がございましたらこちらよりご連絡ください。
写真枚数:2枚
土地・中古住宅の売買、アパート・マンション等の斡旋、管理からリフォーム、新築・増改築と住まいの事ならなんでもご相談下さい!