OAK VILLA BUREAU 薬院大通、101
ここに注目!お問い合わせは㈱El rey まで御願い致します
この物件の契約期間は 3年間です。
定期借家物件は、賃貸借契約期間満了後、原則として契約の更新ができない物件です。再契約の可否については不動産会社にお問合せください。
| 賃料・費用 |
50万6,880円
(+管理費等 3万3,792円)
坪単価:約3.3万円/坪
敷92万1,600円礼なし仲50万6,880円
|
|---|---|
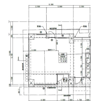
| 専有面積 | 50.79m² (15.36坪) |
| 住所 | 福岡県福岡市中央区薬院2-1-5 |
| 交通 | 薬院大通駅(徒歩1分)|薬院駅(徒歩7分)|渡辺通駅(徒歩12分)道順を見る |
| 階/階建 | 1階 / 9階建 |
| 築年月 | 築1年(2024年4月) |
| 駐車場 |
なし
|
空室確認、見学、詳細を知りたい方はこちら!
お電話の際は「連合隊の物件」とお伝えください。
情報掲載期限:あと24日(更新日 2026/2/24)
- 物件写真・概要
- 周辺地図
-
空室確認、見学、詳細を知りたい方はこちら!
おすすめポイント
- 駅徒歩1分以内
- 出店するなら…この業種がおすすめ!
- 飲食全般(重飲食含む)

- 喫茶・カフェ(軽飲食)

- バー・クラブ・スナック

- 小売・物販

- 美容・健康・介護

- 医療

- 教育・スクール

- 事務所

- アミューズメント

交通色がついているアイコンをクリックすると、本物件までの道順を見ることができます。
物件概要
所在階/建物の階建 1階 / 地上9階建 主要採光面 構造 鉄筋コンクリート(RC)造 間取り 契約期間 定期借家(3年間) 権利金 住宅保険 出店推奨業種 喫茶・カフェ(軽飲食)、小売・物販、美容・健康・介護 出店不可業種 引渡し 相談 管理人 取引態様 仲介 物件No 設備・特徴 備考 ※現状を優先とさせていただきます。 ※定期借家契約3年 ※業務委託料:100% ※再契約事務手数料:55,000円 ※短期解約違約金:1年未満での解約は賃料+共益費1ヶ月分 ※インフォメーションボード代13,200円 ※内装図面要提出 ※福岡市福祉のまちづくり条例事前協議書要提出 主な周辺施設色がついているアイコンをクリックすると、本物件までの道順を見ることができます。
-
ホームページはこちら福岡県知事(1) 第19609号
(株)El rey〒819-0015
TEL:092-707-6061
FAX:092-707-6068
営業時間:10:00~18:00
定休日:毎週 土曜・日曜・祝日
- 保証協会
- (公社)全国宅地建物取引業保証協会
※連合隊は物件情報の精度向上に努めています:「物件情報に誤りがある」「成約済みである」などお気付きの点がございましたらこちらよりご連絡ください。
写真枚数:7枚
福岡のテナント・事務所のご相談は株式会社El reyへ!居抜きや内装に関することなど何でもご相談ください!
弊社はテナント・事務所の仲介を主に行っている会社です。様々な業種(飲食店・クリニック・美容室・エステ・学習塾・福祉施設・オフィスなど)の仲介実績が多数ございますので、専門のスタッフが親身になってご対応