Ran Terrace 春吉、2階B区画
ここに注目!お問い合わせは㈱El rey まで御願い致します
この物件の契約期間は 5年間です。
定期借家物件は、賃貸借契約期間満了後、原則として契約の更新ができない物件です。再契約の可否については不動産会社にお問合せください。
| 賃料・費用 |
47万250円
(+管理費等 -円)
坪単価:約2.8万円/坪
敷342万円礼なし仲47万250円
|
|---|---|
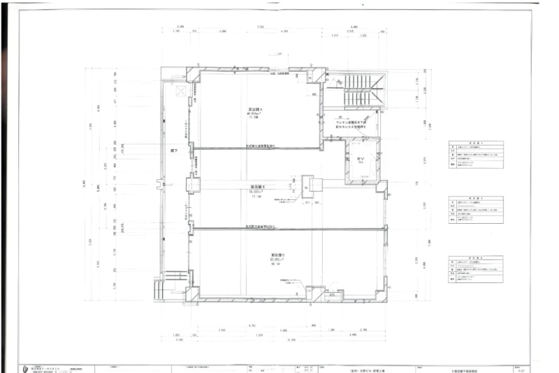
| 専有面積 | 56.55m² (17.1坪) |
| 住所 | 福岡県福岡市中央区春吉3-22-23 |
| 交通 | 西鉄福岡(天神)駅(徒歩8分)|天神南駅(徒歩5分)|櫛田神社前駅(徒歩9分)|渡辺通駅(徒歩10分)道順を見る |
| 階/階建 | 2階 / 7階建 |
| 築年月 | 築1年未満(2026年3月) |
| 駐車場 |
なし
|
空室確認、見学、詳細を知りたい方はこちら!
お電話の際は「連合隊の物件」とお伝えください。
情報掲載期限:あと9日(更新日 2026/3/26)
- 物件写真・概要
- 周辺地図
-
空室確認、見学、詳細を知りたい方はこちら!
おすすめポイント
- 駅徒歩5分以内
- スケルトン
- 出店するなら…この業種がおすすめ!
- 飲食全般(重飲食含む)

- 喫茶・カフェ(軽飲食)

- バー・クラブ・スナック

- 小売・物販

- 美容・健康・介護

- 医療

- 教育・スクール

- 事務所

- アミューズメント

交通色がついているアイコンをクリックすると、本物件までの道順を見ることができます。
- 西鉄福岡(天神)駅西鉄天神大牟田線徒歩8分(約637m)
- 天神南駅福岡市営地下鉄七隈線徒歩5分(約385m)
- 櫛田神社前駅福岡市営地下鉄七隈線徒歩9分(約667m)
- 渡辺通駅福岡市営地下鉄七隈線徒歩10分(約759m)
物件概要
所在階/建物の階建 2階 / 地上7階建 主要採光面 構造 鉄筋コンクリート(RC)造 間取り 契約期間 定期借家(5年間) 権利金 住宅保険 出店推奨業種 飲食全般(重飲食含む)、喫茶・カフェ(軽飲食)、小売・物販 出店不可業種 引渡し 2026年3月中旬 管理人 取引態様 仲介 物件No 設備・特徴 - スケルトン
備考 主な周辺施設色がついているアイコンをクリックすると、本物件までの道順を見ることができます。
-
ホームページはこちら福岡県知事(1) 第19609号
(株)El rey〒819-0015
TEL:092-707-6061
FAX:092-707-6068
営業時間:10:00~18:00
定休日:毎週 土曜・日曜・祝日
- 保証協会
- (公社)全国宅地建物取引業保証協会
※連合隊は物件情報の精度向上に努めています:「物件情報に誤りがある」「成約済みである」などお気付きの点がございましたらこちらよりご連絡ください。
写真枚数:2枚
福岡のテナント・事務所のご相談は株式会社El reyへ!居抜きや内装に関することなど何でもご相談ください!
弊社はテナント・事務所の仲介を主に行っている会社です。様々な業種(飲食店・クリニック・美容室・エステ・学習塾・福祉施設・オフィスなど)の仲介実績が多数ございますので、専門のスタッフが親身になってご対応