井相田三丁目事務所、3F
ここに注目!お問い合わせは㈱El rey まで御願い致します
| 賃料・費用 |
57万6,400円
(+管理費等 -円)
坪単価:約2,199円/坪
敷314万4,000円礼なし仲57万6,400円
|
|---|---|
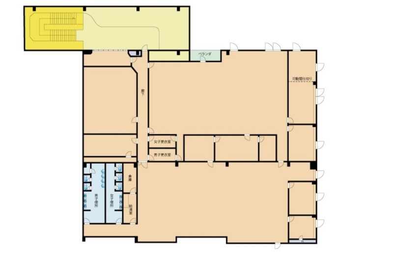
| 専有面積 | 866.55m² (262.13坪) |
| 住所 | 福岡県福岡市博多区井相田3-2-1 |
| 交通 | 雑餉隈駅(徒歩12分)|桜並木駅(徒歩13分)|南福岡駅(徒歩18分)道順を見る |
| 階/階建 | 3階建 |
| 築年月 | 築37年(1988年10月) |
| 駐車場 |
なし
|
空室確認、見学、詳細を知りたい方はこちら!
お電話の際は「連合隊の物件」とお伝えください。
情報掲載期限:あと26日(更新日 2026/3/16)
- 物件写真・概要
- 周辺地図
-
空室確認、見学、詳細を知りたい方はこちら!
- 出店するなら…この業種がおすすめ!
- 飲食全般(重飲食含む)

- 喫茶・カフェ(軽飲食)

- バー・クラブ・スナック

- 小売・物販

- 美容・健康・介護

- 医療

- 教育・スクール

- 事務所

- アミューズメント

交通色がついているアイコンをクリックすると、本物件までの道順を見ることができます。
物件概要
所在階/建物の階建 地上3階建 主要採光面 構造 鉄骨造 間取り 契約期間 2年間 権利金 住宅保険 出店推奨業種 事務所 出店不可業種 引渡し 相談 管理人 取引態様 仲介 物件No 設備・特徴 備考 エレベーターなし。駐車場は約5台分スペースとなります。 主な周辺施設色がついているアイコンをクリックすると、本物件までの道順を見ることができます。
-
ホームページはこちら福岡県知事(1) 第19609号
(株)El rey〒819-0015
TEL:092-707-6061
FAX:092-707-6068
営業時間:10:00~18:00
定休日:毎週 土曜・日曜・祝日
- 保証協会
- (公社)全国宅地建物取引業保証協会
※連合隊は物件情報の精度向上に努めています:「物件情報に誤りがある」「成約済みである」などお気付きの点がございましたらこちらよりご連絡ください。
写真枚数:1枚
福岡のテナント・事務所のご相談は株式会社El reyへ!居抜きや内装に関することなど何でもご相談ください!
弊社はテナント・事務所の仲介を主に行っている会社です。様々な業種(飲食店・クリニック・美容室・エステ・学習塾・福祉施設・オフィスなど)の仲介実績が多数ございますので、専門のスタッフが親身になってご対応