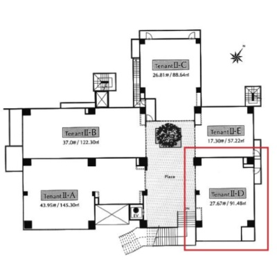
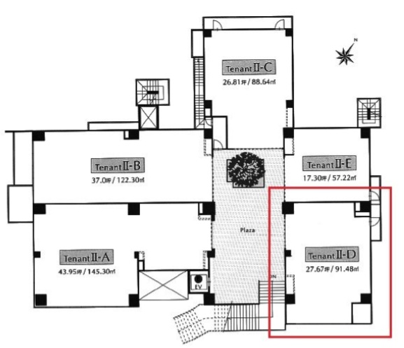
リバーフェイス博多、2-D
ここに注目!お問い合わせの際には①出店予定の業種②電話番号を記載くださいませ。
この物件は居抜き物件です。
現状の設備が残されたまま取引されるため、初期費用を抑え速やかに事業を開始できるメリットがあります。
| 賃料・費用 |
39万6,000円
(+管理費等 6万1,600円)
坪単価:約1.4万円/坪
敷216万円礼なし仲39万6,000円
|
|---|---|
| 専有面積 | 91.48m² (27.67坪) |
| 住所 | 福岡県福岡市博多区中洲5-4-6 |
| 交通 | 中洲川端駅(徒歩5分)|天神駅(徒歩9分)|櫛田神社前駅(徒歩10分)道順を見る |
| 階/階建 | 2階 / 14階建 |
| 築年月 | 築19年(2006年3月) |
| 駐車場 |
あり (2万3,100円/台)
|
空室確認、見学、詳細を知りたい方はこちら!
お電話の際は「連合隊の物件」とお伝えください。
情報掲載期限:あと19日(更新日 2025/11/28)
- 物件写真・概要
- 周辺地図
-
空室確認、見学、詳細を知りたい方はこちら!
おすすめポイント
- 駅徒歩5分以内
- 駐車場あり
- 出店するなら…この業種がおすすめ!
- 飲食全般(重飲食含む)

- 喫茶・カフェ(軽飲食)

- バー・クラブ・スナック

- 小売・物販

- 美容・健康・介護

- 医療

- 教育・スクール

- 事務所

- アミューズメント

交通色がついているアイコンをクリックすると、本物件までの道順を見ることができます。
物件概要
所在階/建物の階建 2階 / 地上14階建 主要採光面 構造 鉄筋コンクリート(RC)造 間取り 契約期間 3年間 権利金 住宅保険 出店推奨業種 飲食全般(重飲食含む)、喫茶・カフェ(軽飲食) 出店不可業種 居抜き情報 [その他(中華料理)] の居抜き造作譲渡料 500万円 引渡し 相談 管理人 取引態様 仲介 物件No 設備・特徴 備考 主な周辺施設色がついているアイコンをクリックすると、本物件までの道順を見ることができます。
-
ホームページはこちら福岡県知事(1) 第19609号
(株)El rey〒819-0015
TEL:092-707-6061
FAX:092-707-6068
営業時間:10:00~18:00
定休日:毎週 土曜・日曜・祝日
- 保証協会
- (公社)全国宅地建物取引業保証協会
※連合隊は物件情報の精度向上に努めています:「物件情報に誤りがある」「成約済みである」などお気付きの点がございましたらこちらよりご連絡ください。
写真枚数:7枚
福岡のテナント・事務所のご相談は株式会社El reyへ!居抜きや内装に関することなど何でもご相談ください!
弊社はテナント・事務所の仲介を主に行っている会社です。様々な業種(飲食店・クリニック・美容室・エステ・学習塾・福祉施設・オフィスなど)の仲介実績が多数ございますので、専門のスタッフが親身になってご対応