久原本家天神ビル、3階
ここに注目!お問い合わせは㈱El rey まで御願い致します
この物件の契約期間は 5年間です。
定期借家物件は、賃貸借契約期間満了後、原則として契約の更新ができない物件です。再契約の可否については不動産会社にお問合せください。
| 賃料・費用 |
65万2,650円
(+管理費等 13万9,854円)
坪単価:約1.5万円/坪
敷593万3,190円礼なし仲65万2,650円
|
|---|---|
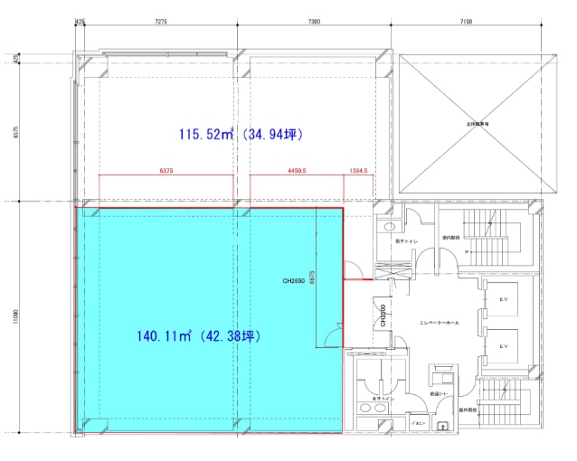
| 専有面積 | 140.11m² (42.38坪) |
| 住所 | 福岡県福岡市中央区天神4-1-11 |
| 交通 | 天神駅(徒歩6分)|中洲川端駅(徒歩9分)|西鉄福岡(天神)駅(徒歩9分)道順を見る |
| 階/階建 | 3階 / 9階建 |
| 築年月 | 築25年(2001年3月) |
| 駐車場 |
あり
|
空室確認、見学、詳細を知りたい方はこちら!
お電話の際は「連合隊の物件」とお伝えください。
情報掲載期限:あと15日(更新日 2026/4/20)
- 物件写真・概要
- 周辺地図
-
空室確認、見学、詳細を知りたい方はこちら!
おすすめポイント
- 駐車場あり
交通色がついているアイコンをクリックすると、本物件までの道順を見ることができます。
物件概要
所在階/建物の階建 3階 / 地上9階建 主要採光面 構造 鉄骨鉄筋コンクリート(SRC)造 間取り 契約期間 定期借家(5年間) 権利金 住宅保険 引渡し 相談 管理人 取引態様 仲介 物件No 設備・特徴 備考 主な周辺施設色がついているアイコンをクリックすると、本物件までの道順を見ることができます。
-
ホームページはこちら福岡県知事(1) 第19609号
(株)El rey〒819-0015
TEL:092-707-6061
FAX:092-707-6068
営業時間:10:00~18:00
定休日:毎週 土曜・日曜・祝日
- 保証協会
- (公社)全国宅地建物取引業保証協会
※連合隊は物件情報の精度向上に努めています:「物件情報に誤りがある」「成約済みである」などお気付きの点がございましたらこちらよりご連絡ください。
写真枚数:7枚
福岡のテナント・事務所のご相談は株式会社El reyへ!居抜きや内装に関することなど何でもご相談ください!
弊社はテナント・事務所の仲介を主に行っている会社です。様々な業種(飲食店・クリニック・美容室・エステ・学習塾・福祉施設・オフィスなど)の仲介実績が多数ございますので、専門のスタッフが親身になってご対応