(仮称)OZUビル赤坂、301・302
| 賃料・費用 |
62万2,694円
(+管理費等 -円)
坪単価:約2.1万円/坪
敷566万860円礼なし仲62万2,694円
保証金:なし
|
|---|---|
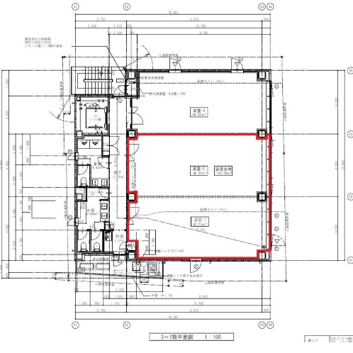
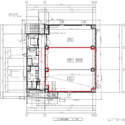
| 専有面積 | 95.97m² (29.03坪) |
| 住所 | 福岡県福岡市中央区大名1-13-35 |
| 交通 | 赤坂駅(徒歩6分)|西鉄福岡(天神)駅(徒歩11分)|薬院大通駅(徒歩12分)道順を見る |
| 階/階建 | 3階 / 8階建 |
| 築年月 | 築1年未満(2025年12月) |
| 駐車場 |
なし
|
空室確認、見学、詳細を知りたい方はこちら!
お電話の際は「連合隊の物件」とお伝えください。
情報掲載期限:あと19日(更新日 2025/12/10)
- 物件写真・概要
- 周辺地図
-
空室確認、見学、詳細を知りたい方はこちら!
- 出店するなら…この業種がおすすめ!
- 飲食全般(重飲食含む)

- 喫茶・カフェ(軽飲食)

- バー・クラブ・スナック

- 小売・物販

- 美容・健康・介護

- 医療

- 教育・スクール

- 事務所

- アミューズメント

交通色がついているアイコンをクリックすると、本物件までの道順を見ることができます。
物件概要
所在階/建物の階建 3階 / 地上8階建 主要採光面 構造 鉄骨造 間取り 契約期間 2年間 権利金 なし 住宅保険 出店推奨業種 事務所 出店不可業種 引渡し 相談 管理人 取引態様 仲介 物件No 設備・特徴 - エレベーター
備考 2025年12月竣工予定 ワンフロア貸し可、フロア分割パターン(3分割または2分割、2分割はワンフロア2:1の割合で分割します) 業種:事務所のみ エントランス(月~金:8:00-19:00開放) 保証会社指定有:ニッポンインシュア 解約予告:6ヵ月、短期解約違約金:1年未満敷金30% 2年未満敷金20% 主な周辺施設色がついているアイコンをクリックすると、本物件までの道順を見ることができます。
-
ホームページはこちら福岡県知事(1) 第19609号
(株)El rey〒819-0015
TEL:092-707-6061
FAX:092-707-6068
営業時間:10:00~18:00
定休日:毎週 土曜・日曜・祝日
- 保証協会
- (公社)全国宅地建物取引業保証協会
※連合隊は物件情報の精度向上に努めています:「物件情報に誤りがある」「成約済みである」などお気付きの点がございましたらこちらよりご連絡ください。
写真枚数:2枚
福岡のテナント・事務所のご相談は株式会社El reyへ!居抜きや内装に関することなど何でもご相談ください!
弊社はテナント・事務所の仲介を主に行っている会社です。様々な業種(飲食店・クリニック・美容室・エステ・学習塾・福祉施設・オフィスなど)の仲介実績が多数ございますので、専門のスタッフが親身になってご対応