冷泉町LYFART、3階
この物件の契約期間は 5年間です。
定期借家物件は、賃貸借契約期間満了後、原則として契約の更新ができない物件です。再契約の可否については不動産会社にお問合せください。
| 賃料・費用 |
57万2,000円
(+管理費等 -円)
坪単価:約1.5万円/坪
敷520万円仲57万2,000円
|
|---|---|
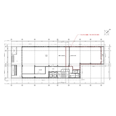
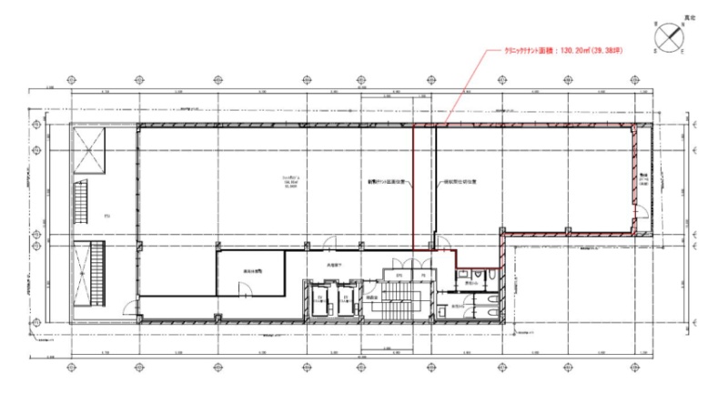
| 専有面積 | 130.2m² (39.38坪) |
| 住所 | 福岡県福岡市博多区冷泉町5-13 |
| 交通 | 祇園駅(徒歩5分)|櫛田神社前駅(徒歩6分)|呉服町駅(徒歩9分)|中洲川端駅(徒歩9分)|博多駅(徒歩15分)道順を見る |
| 階/階建 | 3階 / 5階建 |
| 築年月 | 築1年(2024年6月) |
| 駐車場 |
なし
|
空室確認、見学、詳細を知りたい方はこちら!
お電話の際は「連合隊の物件」とお伝えください。
情報掲載期限:あと11日(更新日 2025/11/20)
- 物件写真・概要
- 周辺地図
-
空室確認、見学、詳細を知りたい方はこちら!
おすすめポイント
- 駅徒歩5分以内
- スケルトン
- 出店するなら…この業種がおすすめ!
- 飲食全般(重飲食含む)

- 喫茶・カフェ(軽飲食)

- バー・クラブ・スナック

- 小売・物販

- 美容・健康・介護

- 医療

- 教育・スクール

- 事務所

- アミューズメント

※出店不可の業種:飲食全般、重飲食(軽飲食は相談可)、水商売
交通色がついているアイコンをクリックすると、本物件までの道順を見ることができます。
- 祇園駅福岡市営地下鉄空港線徒歩5分(約360m)
- 櫛田神社前駅福岡市営地下鉄七隈線徒歩6分(約480m)
- 呉服町駅福岡市営地下鉄箱崎線徒歩9分(約656m)
- 中洲川端駅福岡市営地下鉄箱崎線、福岡市営地下鉄空港線徒歩9分(約702m)
- 博多駅九州新幹線、JR博多南線、福北ゆたか線、福岡市営地下鉄空港線、福岡市営地下鉄七隈線、山陽新幹線、JR鹿児島本線徒歩15分(約1.2km)
物件概要
所在階/建物の階建 3階 / 地上5階建 主要採光面 構造 鉄筋コンクリート(RC)造 間取り 契約期間 定期借家(5年間) 権利金 住宅保険 出店推奨業種 医療 出店不可業種 飲食全般、重飲食(軽飲食は相談可)、水商売 引渡し 相談 管理人 取引態様 仲介 物件No 設備・特徴 - エレベーター
- スケルトン
備考 主な周辺施設色がついているアイコンをクリックすると、本物件までの道順を見ることができます。
-
ホームページはこちら福岡県知事(1) 第19609号
(株)El rey〒819-0015
TEL:092-707-6061
FAX:092-707-6068
営業時間:10:00~18:00
定休日:毎週 土曜・日曜・祝日
- 保証協会
- (公社)全国宅地建物取引業保証協会
※連合隊は物件情報の精度向上に努めています:「物件情報に誤りがある」「成約済みである」などお気付きの点がございましたらこちらよりご連絡ください。
写真枚数:7枚
福岡のテナント・事務所のご相談は株式会社El reyへ!居抜きや内装に関することなど何でもご相談ください!
弊社はテナント・事務所の仲介を主に行っている会社です。様々な業種(飲食店・クリニック・美容室・エステ・学習塾・福祉施設・オフィスなど)の仲介実績が多数ございますので、専門のスタッフが親身になってご対応