グリーンマンションやよい坂Ⅱ
ここに注目!福岡市南区の閑静な住宅街にある分譲タイプのマンション、3LDK!小学校、近くです♪オール電化★ 【初期費用カード決済対応可能です】 大野城店、博多店(TEL:092-474-3303)どちらの店舗でもご案内できます。お気軽にお問い合わせください。 ※室内写真と間取りは現状優先でお願いします。
| 賃料・費用 |
8万3,000円(+管理費等 -円)
敷8万3,000円(1ヶ月)礼16万6,000円(2ヶ月)仲9万1,300円
|
|---|---|
| 間取・専有 |
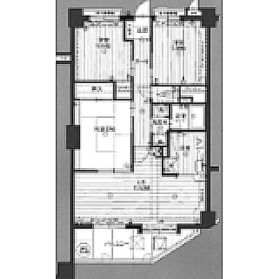
3LDK(71.4m²)└ LDK12.5帖 和室6帖 洋室5.9帖 洋室5.7帖
|
| 住所 | 福岡県福岡市南区老司3-5-28 |
| 交通 | 西鉄バス「老司小学校」停 (徒歩4分) |
| 築年月 | 築31年(1995年3月) |
| 駐車場 |
あり (6,000円/台)
機械式 ※サイズは要確認 |
空室確認、見学、詳細を知りたい方はこちら!
お電話の際は「連合隊の物件」とお伝えください。
情報掲載期限:あと14日(更新日 2026/4/2)
- 物件写真・概要
- 周辺地図
-
空室確認、見学、詳細を知りたい方はこちら!
おすすめポイント
- バス/トイレ別
- オートロック
- 2階以上
- 都市ガス
- 室内洗濯機置場
- 駐車場あり
- エアコン付
- 独立洗面台
- 追い焚き風呂
- ペット相談可
- デザイナーズ
- 敷金・礼金0円
- 近くて便利!徒歩5分以内にある施設
- 4分
4分- 周辺施設を地図で確認
交通
- 西鉄バス「老司小学校」停 徒歩4分(約251m)
物件概要
所在階/建物の階建 2階(207) / 地上8階建 総戸数 主要採光面 南西 構造 鉄筋コンクリート(RC)造 バルコニー あり(9.65m²)契約期間 2年間 更新料/更新手数料 2万2,000円 住宅保険 お問合せください その他費用 毎月の費用 - 自治会費:500円
入居可能時期 即時 管理人 取引態様 仲介 物件No 南 設備・特徴 - 分譲タイプ
- タイル貼り
- エレベーター
- 駐輪場
- 日当り良好
- オール電化
- 室内洗濯機置場
- フローリング
- シューズボックス
- バス/トイレ別
- 温水洗浄トイレ
- 独立洗面台
- オートロック
- モニタ付インターホン
- 防犯カメラ
- ケーブルテレビ
- BSアンテナ
- IHクッキングヒーター
- システムキッチン
- コンロ3口以上
- バイク置き場
備考 【初期費用の詳細については、お問い合わせ下さい】 ◆図面・画像など掲載情報が現行と相違するときは、現況を優先させていただきます◆ ◆駐車場、バイク置場の最新の空き状況は契約時要確認となります◆ 学区色がついているアイコンをクリックすると、本物件までの道順を見ることができます。
主な周辺施設色がついているアイコンをクリックすると、本物件までの道順を見ることができます。
-
ホームページはこちら
福岡県知事 (8) 第11282号
(株)コスモサービス 筑紫オフィス〒816-0952
TEL:092-571-8501
FAX:092-571-8502
営業時間:9:30~18:00
定休日:毎週 水曜・祝日
- 加入団体
- (公社)福岡県宅地建物取引業協会
- 保証協会
- (公社)全国宅地建物取引業保証協会
- 公正取引協議会
- (一社)九州不動産公正取引協議会
※連合隊は物件情報の精度向上に努めています:「物件情報に誤りがある」「成約済みである」などお気付きの点がございましたらこちらよりご連絡ください。
写真枚数:17枚



福岡でペット可物件をお探しなら㈱コスモサービスへ!!
福岡県の物件全てご紹介できます。 特にペット可物件取扱い多数です(^_-)-☆ 春日市・大野城市・太宰府市・筑紫野市・那珂川市はもちろん、福岡市も! お部屋探しのプロがしっかりサポート致します(*^^*)