浄水町A貸家
ここに注目!平尾上水町エリアにある高級賃貸戸建て★ハイグレードな設備★ ❝カード決済対応可能❞ 筑紫オフィス、または本店(博多区 TEL:092-474-3303)どちらの店舗でもご案内できます。お気軽にお問い合わせください。
この物件の契約期間は 5年間です。
定期借家物件は、賃貸借契約期間満了後、原則として契約の更新ができない物件です。再契約の可否については不動産会社にお問合せください。
| 賃料・費用 |
70万円(+管理費等 -円)
礼140万円(2ヶ月)仲77万円
|
|---|---|
| 間取・専有 |
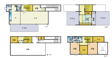
3LDK(275.11m²)
|
| 住所 | 福岡県福岡市中央区平尾浄水町12-8 |
| 交通 | 薬院大通駅(徒歩15分)|桜坂駅(徒歩16分)|西鉄平尾駅(徒歩17分)道順を見る |
| 築年月 | 築17年(2008年3月) |
| 駐車場 |
あり
複数台可(現地要確認) |
空室確認、見学、詳細を知りたい方はこちら!
お電話の際は「連合隊の物件」とお伝えください。
情報掲載期限:あと25日(更新日 2026/1/16)
- 物件写真・概要
- 周辺地図
-
空室確認、見学、詳細を知りたい方はこちら!
おすすめポイント
- オール電化
- 南向き
- 角地
- 都市ガス
- 車庫あり
- 駐車場あり
- エアコン付
- 平屋
- 追い焚き風呂
- ペット相談可
- リフォーム済み
- 敷金・礼金0円
交通色がついているアイコンをクリックすると、本物件までの道順を見ることができます。
物件概要
建物の階建 地上3階 地下1階建 主要採光面 構造 鉄筋コンクリート(RC)造 バルコニー あり- ウッドデッキ・テラス
- バルコニー2面以上
契約期間 定期借家(5年間) 住宅保険 2万2,000円(2年間) 入居可能時期 相談 管理人 取引態様 仲介 物件No 中 設備・特徴 - エアコン付
- 床暖房
- 照明器具付
- システムキッチン
- 宅配BOX
- バス/トイレ別
- 浴室乾燥機
- 追い焚き風呂
- 温水洗浄トイレ
- 独立洗面台
- 室内洗濯機置場
- BSアンテナ
- モニタ付インターホン
- フローリング
- 都市ガス
- 楽器相談可
- コンロ3口以上
- ガスコンロ
- 浴室に窓
- 浴室1坪以上
- 納戸・トランクルーム
- 物置
- トイレ2ヶ所以上
- 全居室収納あり
備考 【初期費用の詳細については、お問い合わせ下さい】 図面・画像など掲載情報が異なる場合は、現況優先となります。 主な周辺施設色がついているアイコンをクリックすると、本物件までの道順を見ることができます。
-
ホームページはこちら
福岡県知事 (8) 第11282号
(株)コスモサービス 筑紫オフィス〒816-0952
TEL:092-571-8501
FAX:092-571-8502
営業時間:9:30~18:00
定休日:毎週 水曜・祝日
- 加入団体
- (公社)福岡県宅地建物取引業協会
- 保証協会
- (公社)全国宅地建物取引業保証協会
- 公正取引協議会
- (一社)九州不動産公正取引協議会
※連合隊は物件情報の精度向上に努めています:「物件情報に誤りがある」「成約済みである」などお気付きの点がございましたらこちらよりご連絡ください。
写真枚数:9枚



福岡でペット可物件をお探しなら㈱コスモサービスへ!!
福岡県の物件全てご紹介できます。 特にペット可物件取扱い多数です(^_-)-☆ 春日市・大野城市・太宰府市・筑紫野市・那珂川市はもちろん、福岡市も! お部屋探しのプロがしっかりサポート致します(*^^*)