ハピネスベリー筑紫野
ここに注目!2025年3月、完成予定の新築アパート、1LDK★ 【ペット可】小型犬・猫、飼育可です。 インターネット(Wi-Fi)無料♪❝カード決済対応可能❞ 筑紫オフィス、または本店(博多区 TEL:092-474-3303)どちらの店舗でもご案内できます。お気軽にお問い合わせください。 ペット可のお部屋をお探しの方!ペット可仲介の実績豊富なコスモサービスのスタッフがお手伝い致します。
| 賃料・費用 |
6万5,000円(+管理費等 3,000円)
礼6万5,000円(1ヶ月)仲7万1,500円
|
|---|---|
| 間取・専有 |
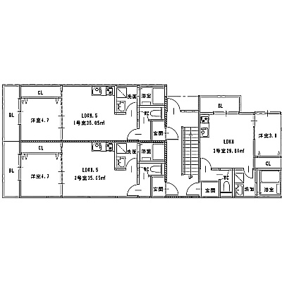
1LDK(35.05m²)└ LDK9.5帖 洋室4.7帖
|
| 住所 | 福岡県筑紫野市杉塚2-12 |
| 交通 | 都府楼南駅(徒歩12分)道順を見る |
| 築年月 | 建築中(2026年3月完成予定) |
| 駐車場 |
あり (9,900円/台)
|
空室確認、見学、詳細を知りたい方はこちら!
お電話の際は「連合隊の物件」とお伝えください。
情報掲載期限:あと25日(更新日 2026/2/9)
- 物件写真・概要
- 周辺地図
-
空室確認、見学、詳細を知りたい方はこちら!
おすすめポイント
- バス/トイレ別
- オートロック
- 2階以上
- 都市ガス
- 室内洗濯機置場
- 駐車場あり
- エアコン付
- 独立洗面台
- 追い焚き風呂
- ペット相談可
- デザイナーズ
- 敷金・礼金0円
- 近くて便利!徒歩5分以内にある施設
- 2分
2分- 周辺施設を地図で確認
交通色がついているアイコンをクリックすると、本物件までの道順を見ることができます。
物件概要
所在階/建物の階建 1階(101) / 地上3階建 総戸数 主要採光面 構造 木造 バルコニー あり契約期間 2年間 住宅保険 2万円(2年間) その他費用 毎月の費用 - 安心サポート:880円
一時金 - 室内消毒代:1万7,600円
- 清掃代:6万5,000円
その他 - ネット初期設定代:5,500円
入居可能時期 2026年3月初旬 管理人 取引態様 仲介 物件No 筑P 設備・特徴 - エアコン付
- システムキッチン
- コンロ2口
- ガスコンロ
- バス/トイレ別
- 浴室乾燥機
- 温水洗浄トイレ
- 独立洗面台
- 室内洗濯機置場
- フローリング
- LPガス
- インターネット利用料無料
- ブロードバンド回線(光ファイバー等の高速インターネット)
- オートロック
- モニタ付インターホン
- シューズボックス
- ペット相談可
- 猫相談可
備考 ●シャッター(雨戸) 【初期費用の詳細については、お問い合わせ下さい】 図面・画像など掲載情報が異なる場合は、現況優先となります。 また駐車場、バイク置場の最新の空き状況は契約時要確認となります ※ペット飼育時は条件変更がございますのでお問い合わせください。 主な周辺施設色がついているアイコンをクリックすると、本物件までの道順を見ることができます。
-
ホームページはこちら
福岡県知事 (8) 第11282号
(株)コスモサービス 筑紫オフィス〒816-0952
TEL:092-571-8501
FAX:092-571-8502
営業時間:9:30~18:00
定休日:毎週 水曜・祝日
- 加入団体
- (公社)福岡県宅地建物取引業協会
- 保証協会
- (公社)全国宅地建物取引業保証協会
- 公正取引協議会
- (一社)九州不動産公正取引協議会
※連合隊は物件情報の精度向上に努めています:「物件情報に誤りがある」「成約済みである」などお気付きの点がございましたらこちらよりご連絡ください。
写真枚数:1枚



福岡でペット可物件をお探しなら㈱コスモサービスへ!!
福岡県の物件全てご紹介できます。 特にペット可物件取扱い多数です(^_-)-☆ 春日市・大野城市・太宰府市・筑紫野市・那珂川市はもちろん、福岡市も! お部屋探しのプロがしっかりサポート致します(*^^*)