樋井川1丁目一戸建て
ここに注目!城南区、新築一戸建て、2SLDK★スタイリッシュでモダンなお部屋★駐車場2台付き【カード決済対応可能】 ※室内写真と間取りは現状優先でお願いします。 筑紫オフィス、または本店(博多区 TEL:092-474-3303)どちらの店舗でもご案内できます。お気軽にお問い合わせください。
| 賃料・費用 |
30万円(+管理費等 -円)
礼60万円(2ヶ月)仲33万円
|
|---|---|
| 間取・専有 |
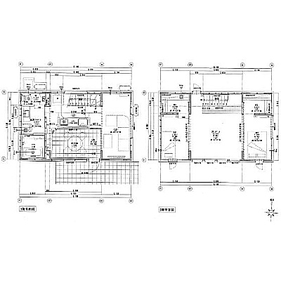
2LDK(78.56m²)└ LDK 洋室 洋室 S
|
| 住所 | 福岡県福岡市城南区樋井川1-14 |
| 交通 | 西鉄バス「城南市民プール前」停 (徒歩3分) |
| 築年月 | 築1年未満(2025年3月) |
| 駐車場 |
あり 駐車可能台数:2台
2台付き |
空室確認、見学、詳細を知りたい方はこちら!
お電話の際は「連合隊の物件」とお伝えください。
情報掲載期限:あと26日(更新日 2025/12/15)
- 物件写真・概要
- 周辺地図
-
空室確認、見学、詳細を知りたい方はこちら!
おすすめポイント
- オール電化
- 南向き
- 角地
- 都市ガス
- 車庫あり
- 駐車2台以上可
- エアコン付
- 平屋
- 追い焚き風呂
- ペット相談可
- リフォーム済み
- 敷金・礼金0円
- 近くて便利!徒歩5分以内にある施設
- 4分
4分- 5分
5分- 周辺施設を地図で確認
交通
- 西鉄バス「城南市民プール前」停 徒歩3分(約218m)
物件概要
建物の階建 地上2階建 主要採光面 構造 木造 契約期間 2年間 更新料/更新手数料 1万1,000円 住宅保険 2万4,000円(2年間) その他費用 毎月の費用 - 24時間管理費:1,100円
一時金 - 消毒代:1万9,800円
入居可能時期 即時 管理人 取引態様 仲介 物件No 城 設備・特徴 - 日当り良好
- 室内洗濯機置場
- フローリング
- ウォークインクローゼット
- シューズボックス
- バス/トイレ別
- 温水洗浄トイレ
- 独立洗面台
- コンロ3口以上
- システムキッチン
- カウンターキッチン
- 都市ガス
- 浴室乾燥機
- 追い焚き風呂
- シャワー付洗面化粧台
- IHクッキングヒーター
- モニタ付インターホン
備考 【初期費用の詳細については、お問い合わせ下さい】 ◆図面・画像など掲載情報が現行と相違するときは、現況を優先させていただきます◆ ◆駐車場、バイク置場の最新の空き状況は契約時要確認となります◆ 主な周辺施設色がついているアイコンをクリックすると、本物件までの道順を見ることができます。
-
ホームページはこちら
福岡県知事 (8) 第11282号
(株)コスモサービス 筑紫オフィス〒816-0952
TEL:092-571-8501
FAX:092-571-8502
営業時間:9:30~18:00
定休日:毎週 水曜・祝日
- 加入団体
- (公社)福岡県宅地建物取引業協会
- 保証協会
- (公社)全国宅地建物取引業保証協会
- 公正取引協議会
- (一社)九州不動産公正取引協議会
※連合隊は物件情報の精度向上に努めています:「物件情報に誤りがある」「成約済みである」などお気付きの点がございましたらこちらよりご連絡ください。
写真枚数:21枚



福岡でペット可物件をお探しなら㈱コスモサービスへ!!
福岡県の物件全てご紹介できます。 特にペット可物件取扱い多数です(^_-)-☆ 春日市・大野城市・太宰府市・筑紫野市・那珂川市はもちろん、福岡市も! お部屋探しのプロがしっかりサポート致します(*^^*)