カーサクレアールⅢ
ここに注目!駐車場1台無料付き☆TVモニター付きインターホン有り! ★カード決済対応可能です★ 福岡の物件全てご紹介出来ます!!何でもご相談下さい♪ ご内覧希望の方はお気軽にお問い合わせください(^^♪ ※室内写真と間取りは現状優先でお願いします。
| 賃料・費用 |
6万1,000円(+管理費等 -円)
敷12万2,000円(2ヶ月)仲6万7,100円
敷引・償却金:12万2,000円(2ヶ月)
|
|---|---|
| 間取・専有 |
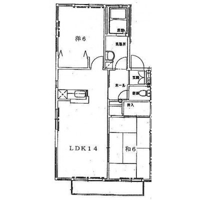
2LDK(60m²)└ LDK14帖 和室6帖 洋室6帖
|
| 住所 | 福岡県糟屋郡志免町田富4-13-25 |
| 交通 | 「田富」停 (徒歩3分) |
| 築年月 | 築27年(1998年8月) |
| 駐車場 |
あり
|
空室確認、見学、詳細を知りたい方はこちら!
お電話の際は「連合隊の物件」とお伝えください。
情報掲載期限:あと11日(更新日 2025/11/28)
- 物件写真・概要
- 周辺地図
-
空室確認、見学、詳細を知りたい方はこちら!
おすすめポイント
- バス/トイレ別
- オートロック
- 2階以上
- 都市ガス
- 室内洗濯機置場
- 駐車場あり
- エアコン付
- 独立洗面台
- 追い焚き風呂
- ペット相談可
- デザイナーズ
- 敷金・礼金0円
- 近くて便利!徒歩5分以内にある施設
- 4分
4分- 周辺施設を地図で確認
交通
- 「田富」停 徒歩3分
物件概要
所在階/建物の階建 2階 / 地下2階建 総戸数 主要採光面 西 構造 その他 バルコニー あり契約期間 1年間 住宅保険 1万5,000円(2年間) 入居可能時期 相談 管理人 取引態様 仲介 物件No 糟 設備・特徴 - 駐輪場
- 角部屋
- 室内洗濯機置場
- シューズボックス
- 全居室収納あり
- バス/トイレ別
- 独立洗面台
- 浴室に窓
- カウンターキッチン
- LPガス
- モニタ付インターホン
- BSアンテナ
備考 【初期費用の詳細については、お問い合わせ下さい】 図面・画像など掲載情報が異なる場合は、現況優先となります。 また駐車場、バイク置場の最新の空き状況は契約時要確認となります 主な周辺施設色がついているアイコンをクリックすると、本物件までの道順を見ることができます。
-
ホームページはこちら
福岡県知事 (8) 第11282号
(株)コスモサービス 筑紫オフィス〒816-0952
TEL:092-571-8501
FAX:092-571-8502
営業時間:9:30~18:00
定休日:毎週 水曜・祝日
- 加入団体
- (公社)福岡県宅地建物取引業協会
- 保証協会
- (公社)全国宅地建物取引業保証協会
- 公正取引協議会
- (一社)九州不動産公正取引協議会
※連合隊は物件情報の精度向上に努めています:「物件情報に誤りがある」「成約済みである」などお気付きの点がございましたらこちらよりご連絡ください。
写真枚数:2枚



福岡でペット可物件をお探しなら㈱コスモサービスへ!!
福岡県の物件全てご紹介できます。 特にペット可物件取扱い多数です(^_-)-☆ 春日市・大野城市・太宰府市・筑紫野市・那珂川市はもちろん、福岡市も! お部屋探しのプロがしっかりサポート致します(*^^*)