アーバンパレス春日一の谷レークアベニュー
ここに注目!【角部屋】床暖房有り。 周辺にはスーパー、コンビニ、銀行等々・・・生活環境便利なエリアです♪* ※室内写真と間取りは現状優先でお願いします。 筑紫オフィス、または本店(博多区 TEL:092-474-3303)どちらの店舗でもご案内できます。お気軽にお問い合わせください。
| 賃料・費用 |
12万円(+管理費等 -円)
敷48万円(4ヶ月)礼なし仲13万2,000円
保証金:なし
|
|---|---|
| 間取・専有 |
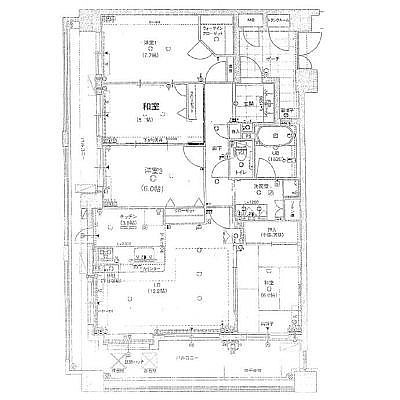
3LDK(94.15m²)└ LDK15/洋7/洋5.2/和5.7
|
| 住所 | 福岡県春日市一の谷3-22 |
| 交通 | 西鉄バス 「一の谷2丁目」停(徒歩2分) |
| 築年月 | 築18年(2007年11月) |
| 駐車場 |
あり (8,000円/台)
|
空室確認、見学、詳細を知りたい方はこちら!
お電話の際は「連合隊の物件」とお伝えください。
情報掲載期限:あと27日(更新日 2025/12/19)
- 物件写真・概要
- 周辺地図
-
空室確認、見学、詳細を知りたい方はこちら!
おすすめポイント
- バス/トイレ別
- オートロック
- 2階以上
- 都市ガス
- 室内洗濯機置場
- 駐車場あり
- エアコン付
- 独立洗面台
- 追い焚き風呂
- ペット相談可
- デザイナーズ
- 敷金・礼金0円
- 近くて便利!徒歩5分以内にある施設
- 4分
4分- 3分
3分- 周辺施設を地図で確認
交通
- 西鉄バス 「一の谷2丁目」停徒歩2分
物件概要
所在階/建物の階建 6階(604) / 地上7階建 総戸数 主要採光面 構造 鉄筋コンクリート(RC)造 バルコニー あり契約期間 2年間 住宅保険 お問合せください 入居可能時期 即時 管理人 取引態様 仲介 物件No 春 設備・特徴 - バス/トイレ別
- ウォークインクローゼット
- システムキッチン
- カウンターキッチン
- 独立洗面台
- 室内洗濯機置場
- フローリング
- エレベーター
- オートロック
- 宅配BOX
- 駐輪場
- 床暖房
- 角部屋
- シューズボックス
- 全居室収納あり
備考 ※法人様契約希望 【初期費用の詳細については、お問い合わせ下さい】 ◆図面・画像など掲載情報が現行と相違するときは、現況を優先させていただきます◆ ◆駐車場、バイク置場の最新の空き状況は契約時要確認となります◆ 主な周辺施設色がついているアイコンをクリックすると、本物件までの道順を見ることができます。
-
ホームページはこちら
福岡県知事 (8) 第11282号
(株)コスモサービス 筑紫オフィス〒816-0952
TEL:092-571-8501
FAX:092-571-8502
営業時間:9:30~18:00
定休日:毎週 水曜・祝日
- 加入団体
- (公社)福岡県宅地建物取引業協会
- 保証協会
- (公社)全国宅地建物取引業保証協会
- 公正取引協議会
- (一社)九州不動産公正取引協議会
※連合隊は物件情報の精度向上に努めています:「物件情報に誤りがある」「成約済みである」などお気付きの点がございましたらこちらよりご連絡ください。
写真枚数:5枚
外観
間取り
その他の画像1



福岡でペット可物件をお探しなら㈱コスモサービスへ!!
福岡県の物件全てご紹介できます。 特にペット可物件取扱い多数です(^_-)-☆ 春日市・大野城市・太宰府市・筑紫野市・那珂川市はもちろん、福岡市も! お部屋探しのプロがしっかりサポート致します(*^^*)