原四丁目店舗
ここに注目!2026年11月竣工予定の新築テナントです!業種ご相談ください!
居抜き物件・未公開物件多数あります!こちらよりHPにアクセスください!
この物件の契約期間は 5年間です。
定期借家物件は、賃貸借契約期間満了後、原則として契約の更新ができない物件です。再契約の可否については不動産会社にお問合せください。
| 賃料・費用 |
20万7,900円
(+管理費等 -円)
坪単価:約1.2万円/坪
敷113万4,000円礼18万9,000円仲20万7,900円
|
|---|---|
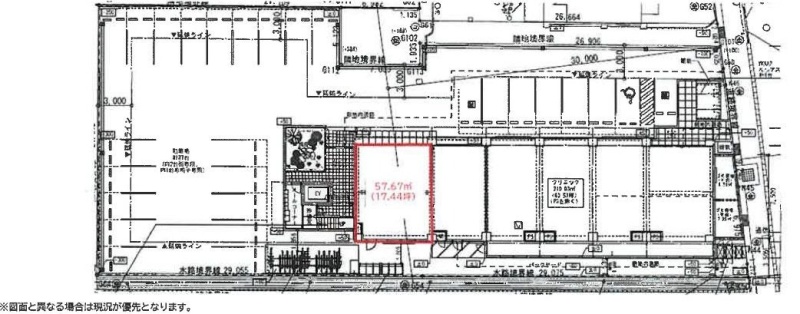
| 専有面積 | 57.67m² (17.44坪) |
| 住所 | 福岡県福岡市早良区原4-1242-2 |
| 交通 | 室見駅(徒歩20分)|藤崎駅(徒歩25分)|茶山駅(徒歩36分)|次郎丸駅(徒歩27分)|賀茂駅(徒歩29分)道順を見る |
| 階/階建 | 路面 / 8階建 |
| 築年月 | 建築中(2026年11月完成予定) |
| 駐車場 |
なし
|
空室確認、見学、詳細を知りたい方はこちら!
お電話の際は「連合隊の物件」とお伝えください。
情報掲載期限:あと24日(更新日 2026/4/10)
- 物件写真・概要
- 周辺地図
-
空室確認、見学、詳細を知りたい方はこちら!
おすすめポイント
- 路面店
- 幹線道路沿い
- スケルトン
- 出店するなら…この業種がおすすめ!
- 飲食全般(重飲食含む)

- 喫茶・カフェ(軽飲食)

- バー・クラブ・スナック

- 小売・物販

- 美容・健康・介護

- 医療

- 教育・スクール

- 事務所

- アミューズメント

交通色がついているアイコンをクリックすると、本物件までの道順を見ることができます。
- 室見駅福岡市営地下鉄空港線徒歩20分(約1.6km)
- 藤崎駅福岡市営地下鉄空港線徒歩25分(約2km)
- 茶山駅福岡市営地下鉄七隈線徒歩36分(約2.9km)
- 次郎丸駅福岡市営地下鉄七隈線徒歩27分(約2.2km)
- 賀茂駅福岡市営地下鉄七隈線徒歩29分(約2.3km)
物件概要
所在階/建物の階建 1階 / 地上8階建 主要採光面 構造 鉄筋コンクリート(RC)造 間取り 契約期間 定期借家(5年間) 権利金 住宅保険 出店推奨業種 喫茶・カフェ(軽飲食)、美容・健康・介護、医療 出店不可業種 引渡し 2026年11月中旬 管理人 取引態様 仲介 物件No 設備・特徴 - 幹線道路沿い
- 路面店
- スケルトン
備考 福岡で1986年創業!テナント専門の弊社に貸店舗・事務所のことは何でもお任せください! 居抜き物件・非公開物件多数ございます! 新着情報も豊富です!開店・移転・増店・居抜き売却はお気軽にお問い合わせください! 主な周辺施設色がついているアイコンをクリックすると、本物件までの道順を見ることができます。
-
※連合隊は物件情報の精度向上に努めています:「物件情報に誤りがある」「成約済みである」などお気付きの点がございましたらこちらよりご連絡ください。
写真枚数:1枚
福岡近郊の不動産のことなら何でもご相談ください!地域に密着した情報力で理想の物件をお探しいたします!
早良区西新で昭和60年に創業以来、居抜き物件・空店舗を中心に数多くのご依頼を頂いております!住居情報も充実しております。ご相談、ご質問などお気軽にご連絡下さいませ!!