ホワイティ西新Ⅱ
ここに注目!福岡市早良区西新に位置する「ホワイティ西新Ⅱ」のご紹介です。福岡市営地下鉄空港線西新駅から徒歩6分とアクセスしやすい立地が魅力。160.21m²の広々とした空間は、美容・健康・介護、医療、教育・スクールといった幅広い事業展開にぴったりです。 路面店で幹線道路沿いという抜群の視認性は、お客様の目を惹きつけ、集客に繋がりやすいのが嬉しいポイント。駐車場も完備しておりますので、お車でのご来店や通勤にも大変便利です。周辺には銀行やコンビニ、飲食店、ドラッグストアなど生活利便施設が充実しており、ビジネスを強力にサポートしてくれることでしょう。 初期費用を抑えたい方にも嬉しい礼金0円!新しいビジネスのスタートを、ぜひこの「ホワイティ西新Ⅱ」で実現しませんか?(※飲食全般は不可となりますのでご注意ください。)
居抜き物件・未公開物件多数あります!こちらよりHPにアクセスください!
| 賃料・費用 |
74万6,284円
(+管理費等 -円)
坪単価:約1.5万円/坪
敷678万4,400円礼なし仲74万6,284円
|
|---|---|
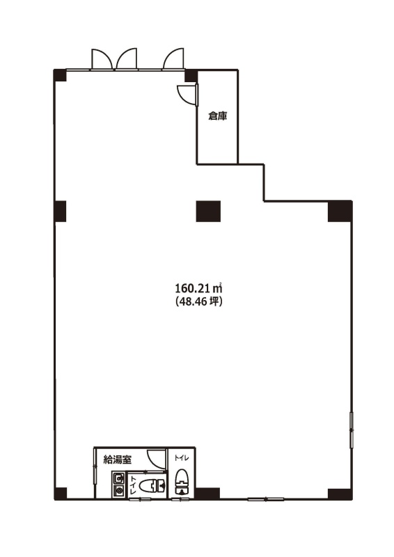
| 専有面積 | 160.21m² (48.46坪) |
| 住所 | 福岡県福岡市早良区西新5-15-51 |
| 交通 | 西新駅(徒歩6分)|藤崎駅(徒歩9分)|室見駅(徒歩19分)|唐人町駅(徒歩21分)|別府駅(徒歩25分)道順を見る |
| 階/階建 | 路面 / 10階建 |
| 築年月 | 築29年(1997年2月) |
| 駐車場 |
あり
|
空室確認、見学、詳細を知りたい方はこちら!
お電話の際は「連合隊の物件」とお伝えください。
情報掲載期限:あと26日(更新日 2026/3/13)
- 物件写真・概要
- 周辺地図
-
空室確認、見学、詳細を知りたい方はこちら!
おすすめポイント
- 路面店
- 幹線道路沿い
- 駐車場あり
- 出店するなら…この業種がおすすめ!
- 飲食全般(重飲食含む)

- 喫茶・カフェ(軽飲食)

- バー・クラブ・スナック

- 小売・物販

- 美容・健康・介護

- 医療

- 教育・スクール

- 事務所

- アミューズメント

※出店不可の業種:飲食全般
交通色がついているアイコンをクリックすると、本物件までの道順を見ることができます。
- 西新駅福岡市営地下鉄空港線徒歩6分(約415m)
- 藤崎駅福岡市営地下鉄空港線徒歩9分(約685m)
- 室見駅福岡市営地下鉄空港線徒歩19分(約1.5km)
- 唐人町駅福岡市営地下鉄空港線徒歩21分(約1.7km)
- 別府駅福岡市営地下鉄七隈線徒歩25分(約2km)
物件概要
所在階/建物の階建 1階 / 地上10階建 主要採光面 構造 鉄骨鉄筋コンクリート(SRC)造 間取り 契約期間 2年間 権利金 住宅保険 出店推奨業種 美容・健康・介護、医療、教育・スクール 出店不可業種 飲食全般 引渡し 相談 管理人 取引態様 仲介 物件No 設備・特徴 - 幹線道路沿い
- 路面店
備考 福岡で1986年創業!テナント専門の弊社に貸店舗・事務所のことは何でもお任せください! 居抜き物件・非公開物件多数ございます! 新着情報も豊富です!開店・移転・増店・居抜き売却はお気軽にお問い合わせください! 主な周辺施設色がついているアイコンをクリックすると、本物件までの道順を見ることができます。
-
※連合隊は物件情報の精度向上に努めています:「物件情報に誤りがある」「成約済みである」などお気付きの点がございましたらこちらよりご連絡ください。
写真枚数:2枚
福岡近郊の不動産のことなら何でもご相談ください!地域に密着した情報力で理想の物件をお探しいたします!
早良区西新で昭和60年に創業以来、居抜き物件・空店舗を中心に数多くのご依頼を頂いております!住居情報も充実しております。ご相談、ご質問などお気軽にご連絡下さいませ!!