井相田三丁目事務所
居抜き物件・未公開物件多数あります!こちらよりHPにアクセスください!
| 賃料・費用 |
57万6,400円
(+管理費等 -円)
坪単価:約2,199円/坪
敷314万4,000円礼なし仲57万6,400円
|
|---|---|
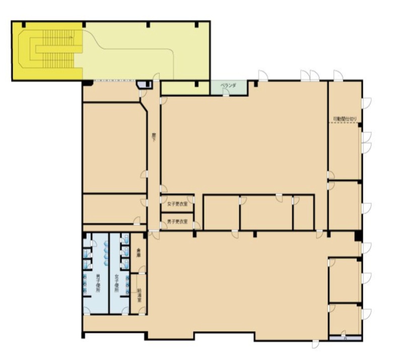
| 専有面積 | 866.55m² (262.13坪) |
| 住所 | 福岡県福岡市博多区井相田3-2-1 |
| 交通 | 雑餉隈駅(徒歩12分)道順を見る |
| 階/階建 | 1階 / 3階建 |
| 築年月 | 築37年(1988年10月) |
| 駐車場 |
なし
|
空室確認、見学、詳細を知りたい方はこちら!
お電話の際は「連合隊の物件」とお伝えください。
情報掲載期限:あと22日(更新日 2026/3/27)
- 物件写真・概要
- 周辺地図
-
空室確認、見学、詳細を知りたい方はこちら!
交通色がついているアイコンをクリックすると、本物件までの道順を見ることができます。
物件概要
所在階/建物の階建 1階 / 地上3階建 主要採光面 構造 鉄骨造 間取り 契約期間 2年間 権利金 なし 住宅保険 引渡し 相談 管理人 取引態様 仲介 物件No 設備・特徴 備考 福岡で1986年創業!テナント専門の弊社に貸店舗・事務所のことは何でもお任せください! 居抜き物件・非公開物件多数ございます! 新着情報も豊富です!開店・移転・増店・居抜き売却はお気軽にお問い合わせください!s 主な周辺施設色がついているアイコンをクリックすると、本物件までの道順を見ることができます。
-
※連合隊は物件情報の精度向上に努めています:「物件情報に誤りがある」「成約済みである」などお気付きの点がございましたらこちらよりご連絡ください。
写真枚数:1枚
福岡近郊の不動産のことなら何でもご相談ください!地域に密着した情報力で理想の物件をお探しいたします!
早良区西新で昭和60年に創業以来、居抜き物件・空店舗を中心に数多くのご依頼を頂いております!住居情報も充実しております。ご相談、ご質問などお気軽にご連絡下さいませ!!