ホームズ祖原
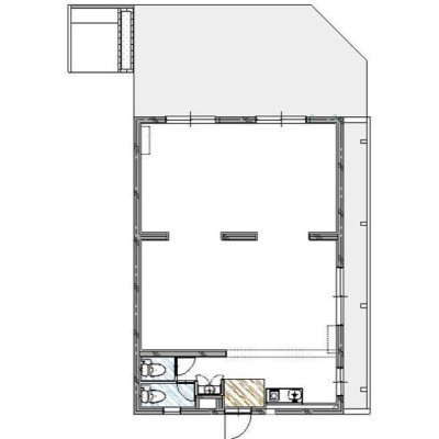
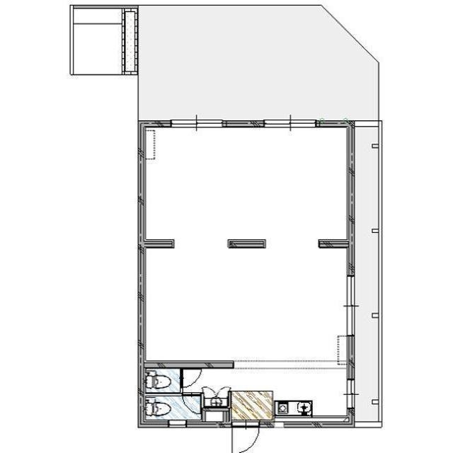
ここに注目!福岡市早良区祖原に位置する「ホームズ祖原」1階の貸店舗・事務所をご紹介します。地下鉄空港線西新駅から徒歩10分、幹線道路沿いの路面店という恵まれた立地は、お客様の目に留まりやすく、新しいビジネスのスタートにぴったりの場所となるでしょう。 広々とした63.0㎡の空間は、美容・健康・介護、教育・スクール、事務所など、幅広い業種にご活用いただけます。周辺には病院や保育園、銀行、コンビニ、飲食店が充実しており、生活利便性が高く、集客にも期待が持てるのが嬉しいポイントです。 初期費用を抑えられる礼金0円も魅力。新しい挑戦を、この場所で始めてみませんか?(大変恐縮ながら、飲食業はご遠慮いただいております。)
居抜き物件・未公開物件多数あります!こちらよりHPにアクセスください!
| 賃料・費用 |
18万7,000円
(+管理費等 -円)
坪単価:約9,817円/坪
敷51万円礼なし仲18万7,000円
|
|---|---|
| 専有面積 | 63m² (19.05坪) |
| 住所 | 福岡県福岡市早良区祖原29-19 |
| 交通 | 西新駅(徒歩10分)|藤崎駅(徒歩15分)|別府駅(徒歩19分)|六本松駅(徒歩25分)|室見駅(徒歩25分)道順を見る |
| 階/階建 | 路面 / 3階建 |
| 築年月 | 築45年(1981年1月) |
| 駐車場 |
なし
|
空室確認、見学、詳細を知りたい方はこちら!
お電話の際は「連合隊の物件」とお伝えください。
新着 情報掲載期限:あと27日(更新日 2026/2/12)
- 物件写真・概要
- 周辺地図
-
空室確認、見学、詳細を知りたい方はこちら!
おすすめポイント
- 路面店
- 幹線道路沿い
- 出店するなら…この業種がおすすめ!
- 飲食全般(重飲食含む)

- 喫茶・カフェ(軽飲食)

- バー・クラブ・スナック

- 小売・物販

- 美容・健康・介護

- 医療

- 教育・スクール

- 事務所

- アミューズメント

※出店不可の業種:飲食全般
交通色がついているアイコンをクリックすると、本物件までの道順を見ることができます。
- 西新駅福岡市営地下鉄空港線徒歩10分(約763m)
- 藤崎駅福岡市営地下鉄空港線徒歩15分(約1.2km)
- 別府駅福岡市営地下鉄七隈線徒歩19分(約1.5km)
- 六本松駅福岡市営地下鉄七隈線徒歩25分(約2km)
- 室見駅福岡市営地下鉄空港線徒歩25分(約2km)
物件概要
所在階/建物の階建 1階(101) / 地上3階建 主要採光面 構造 鉄筋コンクリート(RC)造 間取り 契約期間 2年間 権利金 住宅保険 出店推奨業種 美容・健康・介護、教育・スクール、事務所 出店不可業種 飲食全般 引渡し 相談 管理人 取引態様 仲介 物件No 設備・特徴 - 幹線道路沿い
- 路面店
備考 福岡で1986年創業!テナント専門の弊社に貸店舗・事務所のことは何でもお任せください! 居抜き物件・非公開物件多数ございます! 新着情報も豊富です!開店・移転・増店・居抜き売却はお気軽にお問い合わせください! 主な周辺施設色がついているアイコンをクリックすると、本物件までの道順を見ることができます。
-
※連合隊は物件情報の精度向上に努めています:「物件情報に誤りがある」「成約済みである」などお気付きの点がございましたらこちらよりご連絡ください。
写真枚数:16枚
福岡近郊の不動産のことなら何でもご相談ください!地域に密着した情報力で理想の物件をお探しいたします!
早良区西新で昭和60年に創業以来、居抜き物件・空店舗を中心に数多くのご依頼を頂いております!住居情報も充実しております。ご相談、ご質問などお気軽にご連絡下さいませ!!