サンショウレジデンス西新
ここに注目!2026年3月竣工予定の「サンショウレジデンス西新」で、新しいビジネスの夢を叶えませんか?福岡市営地下鉄空港線「西新」駅から徒歩4分とアクセスしやすく、ビジネスに最適な立地です。 広々とした298.54㎡の空間はスケルトン渡しなので、お客様の理想を形にする自由な空間が広がります。商店街に面し、幹線道路沿いという集客に心強いロケーションも魅力です。飲食全般(重飲食含む)から美容・健康・介護、医療まで、幅広い業種におすすめできます。 周辺にはドラッグストアや飲食店、コンビニ、銀行などが充実しており、日々のビジネスを力強く支えてくれるでしょう。礼金0円も嬉しいポイント。この機会にぜひご検討ください。
居抜き物件・未公開物件多数あります!こちらよりHPにアクセスください!
この物件の契約期間は 10年間です。
定期借家物件は、賃貸借契約期間満了後、原則として契約の更新ができない物件です。再契約の可否については不動産会社にお問合せください。
| 賃料・費用 |
209万円
(+管理費等 -円)
坪単価:約2.3万円/坪
敷1,140万円礼なし仲209万円
|
|---|---|
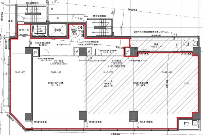
| 専有面積 | 298.54m² (90.3坪) |
| 住所 | 福岡県福岡市早良区西新5-1 |
| 交通 | 西新駅(徒歩4分)|藤崎駅(徒歩12分)|唐人町駅(徒歩20分)|室見駅(徒歩22分)|別府駅(徒歩23分)道順を見る |
| 階/階建 | 2階 / 11階建 |
| 築年月 | 建築中(2026年3月完成予定) |
| 駐車場 |
なし
|
空室確認、見学、詳細を知りたい方はこちら!
お電話の際は「連合隊の物件」とお伝えください。
新着 情報掲載期限:あと29日(更新日 2026/1/31)
- 物件写真・概要
- 周辺地図
-
空室確認、見学、詳細を知りたい方はこちら!
おすすめポイント
- 駅徒歩5分以内
- 商店街に面す
- 幹線道路沿い
- スケルトン
- 出店するなら…この業種がおすすめ!
- 飲食全般(重飲食含む)

- 喫茶・カフェ(軽飲食)

- バー・クラブ・スナック

- 小売・物販

- 美容・健康・介護

- 医療

- 教育・スクール

- 事務所

- アミューズメント

交通色がついているアイコンをクリックすると、本物件までの道順を見ることができます。
- 西新駅福岡市営地下鉄空港線徒歩4分(約290m)
- 藤崎駅福岡市営地下鉄空港線徒歩12分(約915m)
- 唐人町駅福岡市営地下鉄空港線徒歩20分(約1.6km)
- 室見駅福岡市営地下鉄空港線徒歩22分(約1.8km)
- 別府駅福岡市営地下鉄七隈線徒歩23分(約1.8km)
物件概要
所在階/建物の階建 2階 / 地上11階建 主要採光面 構造 鉄筋コンクリート(RC)造 間取り 契約期間 定期借家(10年間) 権利金 住宅保険 出店推奨業種 飲食全般(重飲食含む)、美容・健康・介護、医療 出店不可業種 引渡し 相談 管理人 取引態様 仲介 物件No 設備・特徴 - 商店街に面す
- 幹線道路沿い
- スケルトン
備考 福岡で1986年創業!テナント専門の弊社に貸店舗・事務所のことは何でもお任せください! 居抜き物件・非公開物件多数ございます! 新着情報も豊富です!開店・移転・増店・居抜き売却はお気軽にお問い合わせください! 主な周辺施設色がついているアイコンをクリックすると、本物件までの道順を見ることができます。
-
※連合隊は物件情報の精度向上に努めています:「物件情報に誤りがある」「成約済みである」などお気付きの点がございましたらこちらよりご連絡ください。
写真枚数:2枚
福岡近郊の不動産のことなら何でもご相談ください!地域に密着した情報力で理想の物件をお探しいたします!
早良区西新で昭和60年に創業以来、居抜き物件・空店舗を中心に数多くのご依頼を頂いております!住居情報も充実しております。ご相談、ご質問などお気軽にご連絡下さいませ!!