松島店舗事務所
ここに注目!国道3号線沿い。軽飲食相談可。ほっともっと松島店隣。
居抜き物件・未公開物件多数あります!こちらよりHPにアクセスください!
| 賃料・費用 |
16万5,000円
(+管理費等 -円)
坪単価:約9,142円/坪
敷45万円礼30万円仲16万5,000円
|
|---|---|
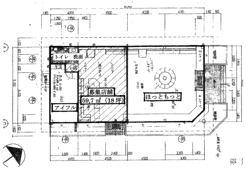
| 専有面積 | 59.7m² (18.05坪) |
| 住所 | 福岡県福岡市東区松島3-1-27 |
| 交通 | 箱崎駅(徒歩22分)|貝塚駅(徒歩27分)|箱崎九大前駅(徒歩28分)道順を見る |
| 階/階建 | 1階 / 1階建 |
| 築年月 | 築36年(1989年12月) |
| 駐車場 |
あり
|
空室確認、見学、詳細を知りたい方はこちら!
お電話の際は「連合隊の物件」とお伝えください。
情報掲載期限:あと25日(更新日 2026/2/10)
- 物件写真・概要
- 周辺地図
-
空室確認、見学、詳細を知りたい方はこちら!
おすすめポイント
- 駐車場あり
- 出店するなら…この業種がおすすめ!
- 飲食全般(重飲食含む)

- 喫茶・カフェ(軽飲食)

- バー・クラブ・スナック

- 小売・物販

- 美容・健康・介護

- 医療

- 教育・スクール

- 事務所

- アミューズメント

※出店不可の業種:水商売、重飲食(軽飲食は相談可)
交通色がついているアイコンをクリックすると、本物件までの道順を見ることができます。
物件概要
所在階/建物の階建 1階 / 地上1階建 主要採光面 構造 鉄骨造 間取り 契約期間 2年間 権利金 住宅保険 出店推奨業種 喫茶・カフェ(軽飲食)、小売・物販、事務所 出店不可業種 水商売、重飲食(軽飲食は相談可) 引渡し 相談 管理人 取引態様 仲介 物件No 設備・特徴 備考 福岡で1986年創業!テナント専門の弊社に貸店舗・事務所のことは何でもお任せください! 居抜き物件・非公開物件多数ございます! 新着情報も豊富です!開店・移転・増店・居抜き売却はお気軽にお問い合わせください! 主な周辺施設色がついているアイコンをクリックすると、本物件までの道順を見ることができます。
-
※連合隊は物件情報の精度向上に努めています:「物件情報に誤りがある」「成約済みである」などお気付きの点がございましたらこちらよりご連絡ください。
写真枚数:5枚
福岡近郊の不動産のことなら何でもご相談ください!地域に密着した情報力で理想の物件をお探しいたします!
早良区西新で昭和60年に創業以来、居抜き物件・空店舗を中心に数多くのご依頼を頂いております!住居情報も充実しております。ご相談、ご質問などお気軽にご連絡下さいませ!!