Y’s GARDEN伊都
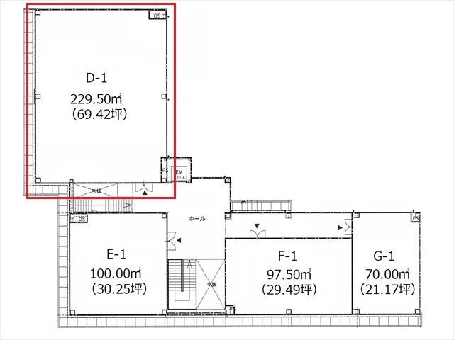
ここに注目!JR筑肥線「九大学研都市」駅から徒歩6分の好立地に位置する「Y’s GARDEN伊都」で、新しいビジネスの舞台を広げてみませんか?広々とした229.5㎡の空間は、お客様の多様なビジネス展開を優しく支えます。2階部分ですがエレベーターが完備されており、お客様もスタッフの方もスムーズにご利用いただけるのが嬉しいポイントです。 周辺にはコンビニや飲食店、ショッピングセンターが充実しており、ビジネスをサポートする環境が整っています。特に「医療」関連の事業をお考えの方にはぴったりの物件です。ガス設備や給排水設備も整っており、事業をスムーズに始められる環境が整っています。 賃料は月額839,900円(税込)、敷金は4,581,276円です。礼金はいただいておりません。飲食業はご遠慮いただいておりますが、お客様の夢を形にするお手伝いをさせていただきます。この機会にぜひご検討ください。
この物件の契約期間は 10年間です。
定期借家物件は、賃貸借契約期間満了後、原則として契約の更新ができない物件です。再契約の可否については不動産会社にお問合せください。
| 賃料・費用 |
83万9,900円
(+管理費等 -円)
坪単価:約1.2万円/坪
敷458万1,276円礼なし仲83万9,900円
保証金:なし/敷引・償却金:なし
|
|---|---|
| 専有面積 | 229.5m² (69.42坪) |
| 住所 | 福岡県福岡市西区北原1-9-7 |
| 交通 | 九大学研都市駅(徒歩6分)|周船寺駅(徒歩20分)道順を見る |
| 階/階建 | 2階 / 2階建 |
| 築年月 | 築16年(2009年11月) |
| 駐車場 |
空室確認、見学、詳細を知りたい方はこちら!
お電話の際は「連合隊の物件」とお伝えください。
新着 情報掲載期限:あと30日(更新日 2026/1/13)
- 物件写真・概要
- 周辺地図
-
空室確認、見学、詳細を知りたい方はこちら!
- 出店するなら…この業種がおすすめ!
- 飲食全般(重飲食含む)

- 喫茶・カフェ(軽飲食)

- バー・クラブ・スナック

- 小売・物販

- 美容・健康・介護

- 医療

- 教育・スクール

- 事務所

- アミューズメント

※出店不可の業種:飲食全般
交通色がついているアイコンをクリックすると、本物件までの道順を見ることができます。
物件概要
所在階/建物の階建 2階(D-1) / 地上2階建 主要採光面 構造 鉄骨造 間取り 契約期間 定期借家(10年間) 更新料/更新手数料 なし 権利金 なし 住宅保険 出店推奨業種 医療 出店不可業種 飲食全般 引渡し 相談 管理人 取引態様 仲介 物件No 設備・特徴 - エレベーター
- 給排水設備
- ガス設備
備考 主な周辺施設色がついているアイコンをクリックすると、本物件までの道順を見ることができます。
-
※連合隊は物件情報の精度向上に努めています:「物件情報に誤りがある」「成約済みである」などお気付きの点がございましたらこちらよりご連絡ください。
写真枚数:10枚
福岡近郊の不動産のことなら何でもご相談ください!地域に密着した情報力で理想の物件をお探しいたします!
早良区西新で昭和60年に創業以来、居抜き物件・空店舗を中心に数多くのご依頼を頂いております!住居情報も充実しております。ご相談、ご質問などお気軽にご連絡下さいませ!!