吉浦ビル
ここに注目!福岡市早良区西新に位置する「吉浦ビル」のご紹介です!福岡市営地下鉄空港線「西新」駅から徒歩3分という、大変便利な駅近立地が魅力。駅前商店街に面しており、ビジネスの拠点として最高の環境が整っています。 周辺には、ファミリーマートやフードウェイ、無印良品やプラリバといった商業施設が徒歩1〜2分圏内に充実しており、お仕事の合間のお買い物やランチにも困りません。 広々とした39.67㎡の空間は、小売・物販店、美容・健康・介護施設、医療機関など、幅広い業種におすすめです。2階という視認性の良いフロアで、新しいビジネスを始めてみませんか? 賃料は月額198,000円(税込)、敷金1,440,000円、礼金はございません。この素晴らしい立地で、あなたの夢を実現するお手伝いをさせてください。
居抜き物件・未公開物件多数あります!こちらよりHPにアクセスください!
| 賃料・費用 |
19万8,000円
(+管理費等 -円)
坪単価:約1.7万円/坪
敷144万円礼なし仲19万8,000円
|
|---|---|
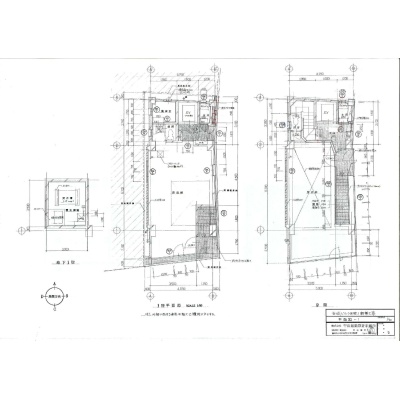
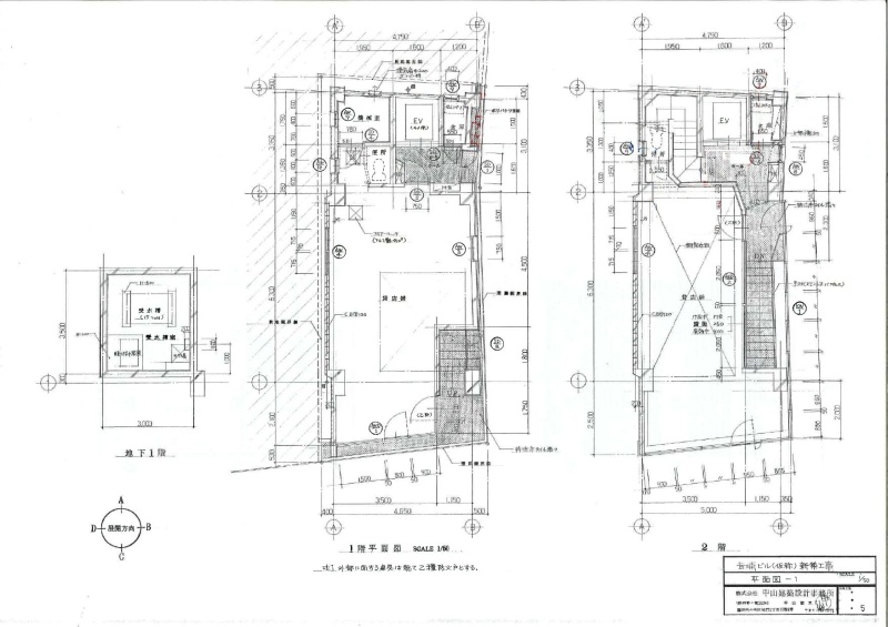
| 専有面積 | 39.67m² (12坪) |
| 住所 | 福岡県福岡市早良区西新4-4-22 |
| 交通 | 西新駅(徒歩3分)|藤崎駅(徒歩16分)|唐人町駅(徒歩16分)|別府駅(徒歩21分)|六本松駅(徒歩26分)道順を見る |
| 階/階建 | 2階 / 5階建 |
| 築年月 | 築40年(1985年5月) |
| 駐車場 |
なし
|
空室確認、見学、詳細を知りたい方はこちら!
お電話の際は「連合隊の物件」とお伝えください。
情報掲載期限:あと26日(更新日 2026/2/10)
- 物件写真・概要
- 周辺地図
-
空室確認、見学、詳細を知りたい方はこちら!
おすすめポイント
- 駅徒歩3分以内
- 駅前立地
- 商店街に面す
- 幹線道路沿い
- 出店するなら…この業種がおすすめ!
- 飲食全般(重飲食含む)

- 喫茶・カフェ(軽飲食)

- バー・クラブ・スナック

- 小売・物販

- 美容・健康・介護

- 医療

- 教育・スクール

- 事務所

- アミューズメント

交通色がついているアイコンをクリックすると、本物件までの道順を見ることができます。
- 西新駅福岡市営地下鉄空港線駅近!徒歩3分(約181m)
- 藤崎駅福岡市営地下鉄空港線徒歩16分(約1.3km)
- 唐人町駅福岡市営地下鉄空港線徒歩16分(約1.3km)
- 別府駅福岡市営地下鉄七隈線徒歩21分(約1.7km)
- 六本松駅福岡市営地下鉄七隈線徒歩26分(約2.1km)
物件概要
所在階/建物の階建 2階 / 地上5階建 主要採光面 構造 鉄筋コンクリート(RC)造 間取り 契約期間 2年間 権利金 住宅保険 出店推奨業種 小売・物販、美容・健康・介護、医療 出店不可業種 引渡し 相談 管理人 取引態様 仲介 物件No 設備・特徴 - 幹線道路沿い
- 商店街に面す
- 駅前立地
備考 福岡で1986年創業!テナント専門の弊社に貸店舗・事務所のことは何でもお任せください! 居抜き物件・非公開物件多数ございます! 新着情報も豊富です!開店・移転・増店・居抜き売却はお気軽にお問い合わせください! 主な周辺施設色がついているアイコンをクリックすると、本物件までの道順を見ることができます。
-
※連合隊は物件情報の精度向上に努めています:「物件情報に誤りがある」「成約済みである」などお気付きの点がございましたらこちらよりご連絡ください。
写真枚数:4枚
福岡近郊の不動産のことなら何でもご相談ください!地域に密着した情報力で理想の物件をお探しいたします!
早良区西新で昭和60年に創業以来、居抜き物件・空店舗を中心に数多くのご依頼を頂いております!住居情報も充実しております。ご相談、ご質問などお気軽にご連絡下さいませ!!