FERIX和白
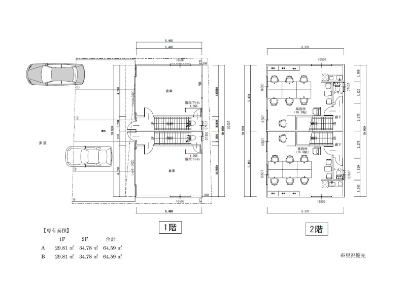
ここに注目!和白通り沿道沿いに新しく倉庫事務所を建築中です!1階は倉庫仕様、2階は事務所仕様となっており、前面に駐車区画2台分確保もできます。「西日本鉄道貝塚線 唐の原駅」「鹿児島本線 九産大前駅」も徒歩圏内で、博多・天神方面からのバスの本数も多く、交通インフラも充実し通勤にも便利なエリアです。
居抜き物件・未公開物件多数あります!こちらよりHPにアクセスください!
| 賃料・費用 |
24万2,000円
(+管理費等 -円)
坪単価:約1.2万円/坪
敷110万円礼24万2,000円(1ヶ月)仲24万2,000円
|
|---|---|
| 専有面積 | 64.59m² (19.53坪) |
| 住所 | 福岡県福岡市東区和白1 |
| 交通 | 唐の原駅(徒歩7分)|和白駅(徒歩14分)|九産大前駅(徒歩15分)道順を見る |
| 階/階建 | 2階建 |
| 築年月 | 築1年未満(2025年12月) |
| 駐車場 |
あり
|
空室確認、見学、詳細を知りたい方はこちら!
お電話の際は「連合隊の物件」とお伝えください。
情報掲載期限:あと25日(更新日 2026/2/10)
- 物件写真・概要
- 周辺地図
-
空室確認、見学、詳細を知りたい方はこちら!
おすすめポイント
- 駐車場あり
交通色がついているアイコンをクリックすると、本物件までの道順を見ることができます。
物件概要
所在階/建物の階建 地上2階建 主要採光面 構造 木造 間取り 契約期間 2年間 権利金 住宅保険 引渡し 相談 管理人 取引態様 仲介 物件No 設備・特徴 備考 福岡で1986年創業!テナント専門の弊社に貸店舗・事務所のことは何でもお任せください! 居抜き物件・非公開物件多数ございます! 新着情報も豊富です!開店・移転・増店・居抜き売却はお気軽にお問い合わせください! 主な周辺施設色がついているアイコンをクリックすると、本物件までの道順を見ることができます。
-
※連合隊は物件情報の精度向上に努めています:「物件情報に誤りがある」「成約済みである」などお気付きの点がございましたらこちらよりご連絡ください。
写真枚数:13枚
福岡近郊の不動産のことなら何でもご相談ください!地域に密着した情報力で理想の物件をお探しいたします!
早良区西新で昭和60年に創業以来、居抜き物件・空店舗を中心に数多くのご依頼を頂いております!住居情報も充実しております。ご相談、ご質問などお気軽にご連絡下さいませ!!