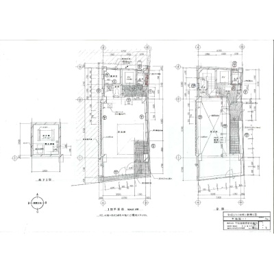
吉浦ビル
ここに注目!西新エリアで新規開業・移転をお考えの方へ!地下鉄空港線「西新」駅まで徒歩3分の好立地、吉浦ビルをご紹介します。 商店街に面した路面店で、視認性の高い物件です。周辺にはショッピングセンター「PRALIVA」をはじめ、スーパー、コンビニ、飲食店が充実しており、集客しやすい環境が整っています。 広々とした40.7㎡の空間は、喫茶・カフェ(軽飲食)、小売・物販、美容・健康・介護など、幅広い業種におすすめです。現在の内装は喫茶・カフェ仕様の居抜き物件となっており、初期費用を抑えてスムーズな開業が期待できます。(造作譲渡費800万円) 月額賃料297,902円(税込)、礼金ゼロで初期費用を軽減。敷金は2,166,560円です。 西新の活気ある街で、あなたのビジネスを始めてみませんか? 詳細はお気軽にお問い合わせください!
居抜き物件・未公開物件多数あります!こちらよりHPにアクセスください!
この物件は 喫茶・カフェ の居抜き物件です。
現状の設備が残されたまま取引されるため、初期費用を抑え速やかに事業を開始できるメリットがあります。
| 賃料・費用 |
29万7,902円
(+管理費等 -円)
坪単価:約2.4万円/坪
敷216万6,560円礼なし仲29万7,902円
|
|---|---|
| 専有面積 | 40.7m² (12.31坪) |
| 住所 | 福岡県福岡市早良区西新4-4-22 |
| 交通 | 西新駅(徒歩3分)|藤崎駅(徒歩16分)|唐人町駅(徒歩16分)|別府駅(徒歩21分)|六本松駅(徒歩26分)道順を見る |
| 階/階建 | 路面 / 5階建 |
| 築年月 | 築40年(1985年5月) |
| 駐車場 |
なし
|
空室確認、見学、詳細を知りたい方はこちら!
お電話の際は「連合隊の物件」とお伝えください。
情報掲載期限:あと26日(更新日 2026/2/10)
- 物件写真・概要
- 周辺地図
-
空室確認、見学、詳細を知りたい方はこちら!
おすすめポイント
- 路面店
- 駅徒歩3分以内
- 駅前立地
- 商店街に面す
- 幹線道路沿い
- 出店するなら…この業種がおすすめ!
- 飲食全般(重飲食含む)

- 喫茶・カフェ(軽飲食)

- バー・クラブ・スナック

- 小売・物販

- 美容・健康・介護

- 医療

- 教育・スクール

- 事務所

- アミューズメント

※出店不可の業種:重飲食(軽飲食は相談可)
交通色がついているアイコンをクリックすると、本物件までの道順を見ることができます。
- 西新駅福岡市営地下鉄空港線駅近!徒歩3分(約181m)
- 藤崎駅福岡市営地下鉄空港線徒歩16分(約1.3km)
- 唐人町駅福岡市営地下鉄空港線徒歩16分(約1.3km)
- 別府駅福岡市営地下鉄七隈線徒歩21分(約1.7km)
- 六本松駅福岡市営地下鉄七隈線徒歩26分(約2.1km)
物件概要
所在階/建物の階建 1階 / 地上5階建 主要採光面 構造 鉄筋コンクリート(RC)造 間取り 契約期間 2年間 権利金 住宅保険 出店推奨業種 喫茶・カフェ(軽飲食)、小売・物販、美容・健康・介護 出店不可業種 重飲食(軽飲食は相談可) 居抜き情報 [喫茶・カフェ] の居抜き造作譲渡料 800万円 引渡し 相談 管理人 取引態様 仲介 物件No 設備・特徴 - 駅前立地
- 商店街に面す
- 幹線道路沿い
- 路面店
備考 福岡で1986年創業!テナント専門の弊社に貸店舗・事務所のことは何でもお任せください! 居抜き物件・非公開物件多数ございます! 新着情報も豊富です!開店・移転・増店・居抜き売却はお気軽にお問い合わせください! 主な周辺施設色がついているアイコンをクリックすると、本物件までの道順を見ることができます。
-
※連合隊は物件情報の精度向上に努めています:「物件情報に誤りがある」「成約済みである」などお気付きの点がございましたらこちらよりご連絡ください。
写真枚数:6枚
福岡近郊の不動産のことなら何でもご相談ください!地域に密着した情報力で理想の物件をお探しいたします!
早良区西新で昭和60年に創業以来、居抜き物件・空店舗を中心に数多くのご依頼を頂いております!住居情報も充実しております。ご相談、ご質問などお気軽にご連絡下さいませ!!