原四丁目店舗
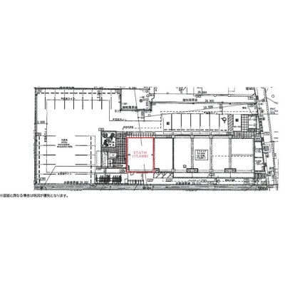
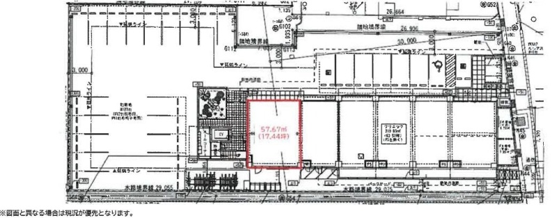
ここに注目!福岡市早良区原に、新たなビジネスチャンスを掴む貸店舗物件が登場しました! 幹線道路沿いの視認性に優れた1階路面店で、多くの方の目に留まりやすい立地が魅力です。周辺にはコンビニ、飲食店、スーパーが充実し、地域住民の生活動線に組み込まれやすく、安定した集客が見込めます。 室内はスケルトン渡しのため、お客様のこだわりを反映した内装を自由にデザインできます。喫茶・カフェ、美容・健康・介護施設、医療機関など、幅広い業種での開業・移転におすすめです。 専有面積57.67㎡、賃料は207,900円(税込)。 理想の店舗空間を創造しませんか?詳細はお気軽にお問い合わせください!
居抜き物件・未公開物件多数あります!こちらよりHPにアクセスください!
この物件の契約期間は 5年間です。
定期借家物件は、賃貸借契約期間満了後、原則として契約の更新ができない物件です。再契約の可否については不動産会社にお問合せください。
| 賃料・費用 |
20万7,900円
(+管理費等 -円)
坪単価:約1.2万円/坪
敷113万4,000円礼18万9,000円仲20万7,900円
|
|---|---|
| 専有面積 | 57.67m² (17.44坪) |
| 住所 | 福岡県福岡市早良区原4-1242-2 |
| 交通 | 室見駅(徒歩20分)|藤崎駅(徒歩25分)|茶山駅(徒歩36分)|次郎丸駅(徒歩27分)|賀茂駅(徒歩29分)道順を見る |
| 階/階建 | 路面 / 8階建 |
| 築年月 | 建築中(2026年11月完成予定) |
| 駐車場 |
なし
|
空室確認、見学、詳細を知りたい方はこちら!
お電話の際は「連合隊の物件」とお伝えください。
情報掲載期限:あと29日(更新日 2025/12/15)
- 物件写真・概要
- 周辺地図
-
空室確認、見学、詳細を知りたい方はこちら!
おすすめポイント
- 路面店
- 幹線道路沿い
- スケルトン
- 出店するなら…この業種がおすすめ!
- 飲食全般(重飲食含む)

- 喫茶・カフェ(軽飲食)

- バー・クラブ・スナック

- 小売・物販

- 美容・健康・介護

- 医療

- 教育・スクール

- 事務所

- アミューズメント

交通色がついているアイコンをクリックすると、本物件までの道順を見ることができます。
- 室見駅福岡市営地下鉄空港線徒歩20分(約1.6km)
- 藤崎駅福岡市営地下鉄空港線徒歩25分(約2km)
- 茶山駅福岡市営地下鉄七隈線徒歩36分(約2.9km)
- 次郎丸駅福岡市営地下鉄七隈線徒歩27分(約2.2km)
- 賀茂駅福岡市営地下鉄七隈線徒歩29分(約2.3km)
物件概要
所在階/建物の階建 1階 / 地上8階建 主要採光面 構造 鉄筋コンクリート(RC)造 間取り 契約期間 定期借家(5年間) 権利金 住宅保険 出店推奨業種 喫茶・カフェ(軽飲食)、美容・健康・介護、医療 出店不可業種 引渡し 2026年11月初旬 管理人 取引態様 仲介 物件No 設備・特徴 - 幹線道路沿い
- スケルトン
- 路面店
備考 福岡で1986年創業!テナント専門の弊社に貸店舗・事務所のことは何でもお任せください! 居抜き物件・非公開物件多数ございます! 新着情報も豊富です!開店・移転・増店・居抜き売却はお気軽にお問い合わせください! 主な周辺施設色がついているアイコンをクリックすると、本物件までの道順を見ることができます。
-
※連合隊は物件情報の精度向上に努めています:「物件情報に誤りがある」「成約済みである」などお気付きの点がございましたらこちらよりご連絡ください。
写真枚数:1枚
福岡近郊の不動産のことなら何でもご相談ください!地域に密着した情報力で理想の物件をお探しいたします!
早良区西新で昭和60年に創業以来、居抜き物件・空店舗を中心に数多くのご依頼を頂いております!住居情報も充実しております。ご相談、ご質問などお気軽にご連絡下さいませ!!