サンショウレジデンス西新
ここに注目!福岡市早良区西新に、ビジネスチャンスを広げる貸店舗が登場です! 福岡市営地下鉄空港線「西新」駅まで徒歩4分とアクセス良好。商店街に面し、幹線道路沿いの視認性も魅力です。 周辺にはドラッグストア、飲食店、コンビニ、銀行などが充実しており、集客力も期待できます。 専有面積は広々298.54㎡(約90坪)!スケルトン渡しなので、お客様のイメージ通りの店舗デザインを実現できます。 飲食全般(重飲食含む)、美容・健康・介護、医療など、幅広い業種に対応可能です。 礼金ゼロで初期費用を抑えられ、定期借家10年契約で長期的な事業計画も立てやすい物件です。 この機会に、理想の店舗を西新でスタートしませんか? 詳細については、お気軽にお問い合わせください!
居抜き物件・未公開物件多数あります!こちらよりHPにアクセスください!
この物件の契約期間は 10年間です。
定期借家物件は、賃貸借契約期間満了後、原則として契約の更新ができない物件です。再契約の可否については不動産会社にお問合せください。
| 賃料・費用 |
227万7,000円
(+管理費等 -円)
坪単価:約2.5万円/坪
敷1,242万円礼なし仲227万7,000円
|
|---|---|
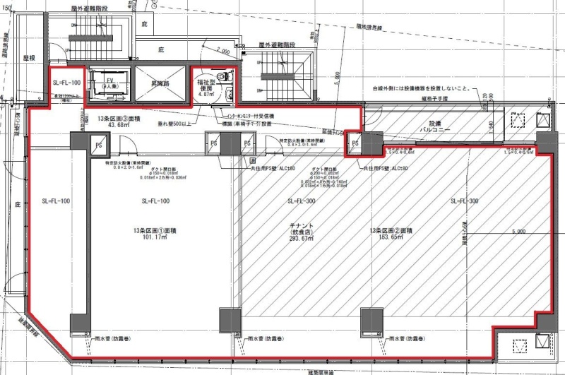
| 専有面積 | 298.54m² (90.3坪) |
| 住所 | 福岡県福岡市早良区西新5-1 |
| 交通 | 西新駅(徒歩4分)|藤崎駅(徒歩12分)|唐人町駅(徒歩20分)|室見駅(徒歩22分)|別府駅(徒歩23分)道順を見る |
| 階/階建 | 2階 / 11階建 |
| 築年月 | 建築中(2026年3月完成予定) |
| 駐車場 |
なし
|
空室確認、見学、詳細を知りたい方はこちら!
お電話の際は「連合隊の物件」とお伝えください。
情報掲載期限:あと30日(更新日 2025/12/15)
- 物件写真・概要
- 周辺地図
-
空室確認、見学、詳細を知りたい方はこちら!
おすすめポイント
- 駅徒歩5分以内
- 駅前立地
- 商店街に面す
- 幹線道路沿い
- スケルトン
- 出店するなら…この業種がおすすめ!
- 飲食全般(重飲食含む)

- 喫茶・カフェ(軽飲食)

- バー・クラブ・スナック

- 小売・物販

- 美容・健康・介護

- 医療

- 教育・スクール

- 事務所

- アミューズメント

交通色がついているアイコンをクリックすると、本物件までの道順を見ることができます。
- 西新駅福岡市営地下鉄空港線徒歩4分(約290m)
- 藤崎駅福岡市営地下鉄空港線徒歩12分(約915m)
- 唐人町駅福岡市営地下鉄空港線徒歩20分(約1.6km)
- 室見駅福岡市営地下鉄空港線徒歩22分(約1.8km)
- 別府駅福岡市営地下鉄七隈線徒歩23分(約1.8km)
物件概要
所在階/建物の階建 2階 / 地上11階建 主要採光面 構造 鉄筋コンクリート(RC)造 間取り 契約期間 定期借家(10年間) 権利金 住宅保険 出店推奨業種 飲食全般(重飲食含む)、美容・健康・介護、医療 出店不可業種 その他費用 毎月の費用 - 町費:300円
- 商店街組合費:3,000円
引渡し 2026年4月初旬 管理人 取引態様 仲介 物件No 設備・特徴 - 駅前立地
- 商店街に面す
- 幹線道路沿い
- スケルトン
備考 福岡で1986年創業!テナント専門の弊社に貸店舗・事務所のことは何でもお任せください! 居抜き物件・非公開物件多数ございます! 新着情報も豊富です!開店・移転・増店・居抜き売却はお気軽にお問い合わせください! 主な周辺施設色がついているアイコンをクリックすると、本物件までの道順を見ることができます。
-
※連合隊は物件情報の精度向上に努めています:「物件情報に誤りがある」「成約済みである」などお気付きの点がございましたらこちらよりご連絡ください。
写真枚数:2枚
福岡近郊の不動産のことなら何でもご相談ください!地域に密着した情報力で理想の物件をお探しいたします!
早良区西新で昭和60年に創業以来、居抜き物件・空店舗を中心に数多くのご依頼を頂いております!住居情報も充実しております。ご相談、ご質問などお気軽にご連絡下さいませ!!