FL BLD
ここに注目!博多駅前エリアの新築ビル!クロス・タイルカーペット選べます!!
居抜き物件・未公開物件多数あります!こちらよりHPにアクセスください!
| 賃料・費用 |
53万5,700円
(+管理費等 -円)
坪単価:約1.9万円/坪
敷292万2,000円礼なし仲53万5,700円
|
|---|---|
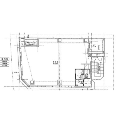
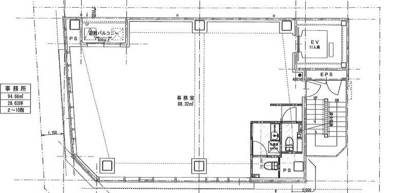
| 専有面積 | 94.64m² (28.62坪) |
| 住所 | 福岡県福岡市博多区博多駅前3-10-14 |
| 交通 | 櫛田神社前駅(徒歩9分)|博多駅(徒歩11分)|祇園駅(徒歩12分)道順を見る |
| 階/階建 | 9階 / 10階建 |
| 築年月 | 築1年(2024年8月) |
| 駐車場 |
なし
|
空室確認、見学、詳細を知りたい方はこちら!
お電話の際は「連合隊の物件」とお伝えください。
情報掲載期限:あと27日(更新日 2026/3/13)
- 物件写真・概要
- 周辺地図
-
空室確認、見学、詳細を知りたい方はこちら!
- 出店するなら…この業種がおすすめ!
- 飲食全般(重飲食含む)

- 喫茶・カフェ(軽飲食)

- バー・クラブ・スナック

- 小売・物販

- 美容・健康・介護

- 医療

- 教育・スクール

- 事務所

- アミューズメント

※出店不可の業種:水商売
交通色がついているアイコンをクリックすると、本物件までの道順を見ることができます。
- 櫛田神社前駅福岡市営地下鉄七隈線徒歩9分(約701m)
- 博多駅九州新幹線、JR博多南線、福北ゆたか線、福岡市営地下鉄空港線、福岡市営地下鉄七隈線、山陽新幹線、JR鹿児島本線徒歩11分(約838m)
- 祇園駅福岡市営地下鉄空港線徒歩12分(約931m)
物件概要
所在階/建物の階建 9階 / 地上10階建 主要採光面 構造 鉄骨造 間取り 契約期間 3年間 権利金 住宅保険 出店推奨業種 事務所 出店不可業種 水商売 引渡し 相談 管理人 取引態様 仲介 物件No 設備・特徴 備考 福岡で1986年創業!テナント専門の弊社に貸店舗・事務所のことは何でもお任せください! 居抜き物件・非公開物件多数ございます! 新着情報も豊富です!開店・移転・増店・居抜き売却はお気軽にお問い合わせください! 主な周辺施設色がついているアイコンをクリックすると、本物件までの道順を見ることができます。
-
※連合隊は物件情報の精度向上に努めています:「物件情報に誤りがある」「成約済みである」などお気付きの点がございましたらこちらよりご連絡ください。
写真枚数:2枚
福岡近郊の不動産のことなら何でもご相談ください!地域に密着した情報力で理想の物件をお探しいたします!
早良区西新で昭和60年に創業以来、居抜き物件・空店舗を中心に数多くのご依頼を頂いております!住居情報も充実しております。ご相談、ご質問などお気軽にご連絡下さいませ!!