重留店舗
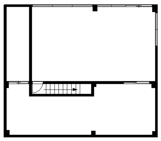
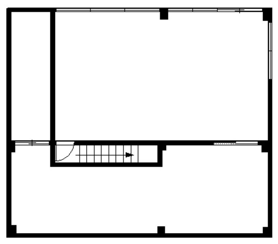
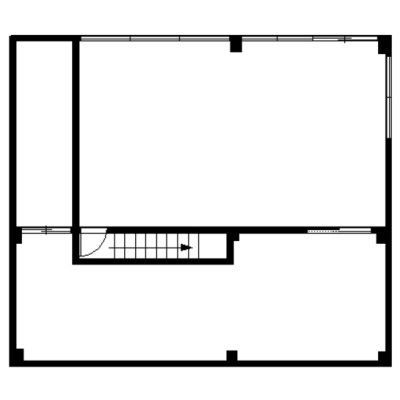
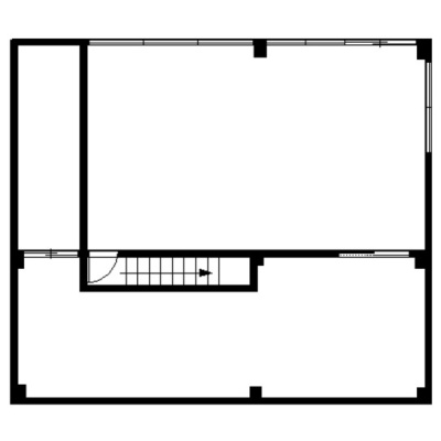
ここに注目!福岡市早良区重留に、ビジネスチャンスを広げる店舗物件が登場しました! 幹線道路沿いの視認性の良い立地で、路面店のため集客力も期待できます。 広々とした99.37㎡の空間は、スケルトン渡しで自由な店舗デザインが可能です。小売・物販、美容・健康・介護、医療など、幅広い業種におすすめです。 周辺にはコンビニ、スーパー、ドラッグストア、飲食店が徒歩圏内に揃い、利便性も良好。 礼金ゼロで初期費用を抑えたい方にも嬉しい条件です。 この機会に、理想のビジネス拠点を見つけませんか?まずはお気軽にお問い合わせください!
居抜き物件・未公開物件多数あります!こちらよりHPにアクセスください!
| 賃料・費用 |
23万1,300円
(+管理費等 -円)
坪単価:約7,698円/坪
敷126万1,638円礼なし仲23万1,300円
|
|---|---|
| 専有面積 | 99.37m² (30.05坪) |
| 住所 | 福岡県福岡市早良区重留7-5-1 |
| 交通 | 賀茂駅(徒歩28分)|野芥駅(徒歩29分)|次郎丸駅(徒歩31分)|梅林駅(徒歩35分)|橋本駅(徒歩42分)道順を見る |
| 階/階建 | 路面 / 3階建 |
| 築年月 | 築31年(1994年8月) |
| 駐車場 |
なし
|
空室確認、見学、詳細を知りたい方はこちら!
お電話の際は「連合隊の物件」とお伝えください。
情報掲載期限:あと28日(更新日 2025/12/15)
- 物件写真・概要
- 周辺地図
-
空室確認、見学、詳細を知りたい方はこちら!
おすすめポイント
- 路面店
- 幹線道路沿い
- スケルトン
- 出店するなら…この業種がおすすめ!
- 飲食全般(重飲食含む)

- 喫茶・カフェ(軽飲食)

- バー・クラブ・スナック

- 小売・物販

- 美容・健康・介護

- 医療

- 教育・スクール

- 事務所

- アミューズメント

交通色がついているアイコンをクリックすると、本物件までの道順を見ることができます。
- 賀茂駅福岡市営地下鉄七隈線徒歩28分(約2.2km)
- 野芥駅福岡市営地下鉄七隈線徒歩29分(約2.3km)
- 次郎丸駅福岡市営地下鉄七隈線徒歩31分(約2.5km)
- 梅林駅福岡市営地下鉄七隈線徒歩35分(約2.8km)
- 橋本駅福岡市営地下鉄七隈線徒歩42分(約3.4km)
物件概要
所在階/建物の階建 1階 / 地上3階建 主要採光面 構造 鉄骨造 間取り 契約期間 2年間 権利金 住宅保険 出店推奨業種 小売・物販、美容・健康・介護、医療 出店不可業種 引渡し 相談 管理人 取引態様 仲介 物件No 設備・特徴 - 幹線道路沿い
- スケルトン
- 路面店
備考 福岡で1986年創業!テナント専門の弊社に貸店舗・事務所のことは何でもお任せください! 居抜き物件・非公開物件多数ございます! 新着情報も豊富です!開店・移転・増店・居抜き売却はお気軽にお問い合わせください! 主な周辺施設色がついているアイコンをクリックすると、本物件までの道順を見ることができます。
-
※連合隊は物件情報の精度向上に努めています:「物件情報に誤りがある」「成約済みである」などお気付きの点がございましたらこちらよりご連絡ください。
写真枚数:20枚
福岡近郊の不動産のことなら何でもご相談ください!地域に密着した情報力で理想の物件をお探しいたします!
早良区西新で昭和60年に創業以来、居抜き物件・空店舗を中心に数多くのご依頼を頂いております!住居情報も充実しております。ご相談、ご質問などお気軽にご連絡下さいませ!!