あおぞらB
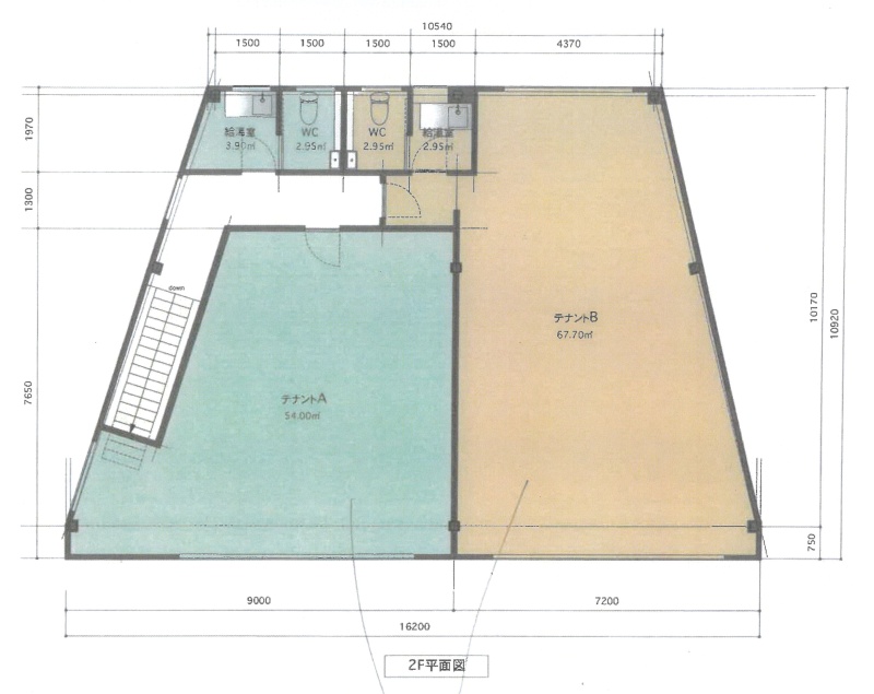
ここに注目!福岡市早良区原に、新規事業や拡大にぴったりの貸店舗・事務所「あおぞらB」が誕生! 幹線道路に面した1階路面店で、通行からの目に留まりやすい優れた視認性を備えています。専有面積73.6m²の広々とした空間はスケルトン渡し。お客様の理想を形にする自由なレイアウトで、魅力的な店舗や事務所を創造できます。 初期費用を抑えたい方に嬉しい【礼金ゼロ】もポイント。来客用にも安心の駐車場1台分(別途月額8,800円)もございます。 徒歩3分のスーパー「サンリブBUONO原」をはじめ、飲食店や銀行、ドラッグストアなどが近隣に集まる好立地。集客が期待できる、賑やかな環境です。 小売・物販、医療、教育・スクールなど幅広い事業におすすめです。この機会にぜひ、現地をご自身の目でお確かめください。お問い合わせをお待ちしております!
居抜き物件・未公開物件多数あります!こちらよりHPにアクセスください!
この物件の契約期間は 10年間です。
定期借家物件は、賃貸借契約期間満了後、原則として契約の更新ができない物件です。再契約の可否については不動産会社にお問合せください。
| 賃料・費用 |
18万7,000円
(+管理費等 -円)
坪単価:約8,401円/坪
敷51万円礼なし仲18万7,000円
|
|---|---|
| 専有面積 | 73.6m² (22.26坪) |
| 住所 | 福岡県福岡市早良区原3-18-15 |
| 交通 | 藤崎駅(徒歩22分)|室見駅(徒歩25分)|西新駅(徒歩35分)|姪浜駅(徒歩39分)道順を見る |
| 階/階建 | 路面 / 2階建 |
| 築年月 | 築44年(1981年2月) |
| 駐車場 |
あり (8,800円/台) 駐車可能台数:1台
|
空室確認、見学、詳細を知りたい方はこちら!
お電話の際は「連合隊の物件」とお伝えください。
情報掲載期限:あと28日(更新日 2025/12/15)
- 物件写真・概要
- 周辺地図
-
空室確認、見学、詳細を知りたい方はこちら!
おすすめポイント
- 路面店
- 幹線道路沿い
- 駐車場あり
- スケルトン
- 出店するなら…この業種がおすすめ!
- 飲食全般(重飲食含む)

- 喫茶・カフェ(軽飲食)

- バー・クラブ・スナック

- 小売・物販

- 美容・健康・介護

- 医療

- 教育・スクール

- 事務所

- アミューズメント

※出店不可の業種:飲食全般
交通色がついているアイコンをクリックすると、本物件までの道順を見ることができます。
- 藤崎駅福岡市営地下鉄空港線徒歩22分(約1.8km)
- 室見駅福岡市営地下鉄空港線徒歩25分(約2km)
- 西新駅福岡市営地下鉄空港線徒歩35分(約2.8km)
- 姪浜駅福岡市営地下鉄空港線、JR筑肥線徒歩39分(約3.1km)
物件概要
所在階/建物の階建 1階 / 地上2階建 主要採光面 構造 鉄骨造 間取り 契約期間 定期借家(10年間) 権利金 住宅保険 出店推奨業種 小売・物販、医療、教育・スクール 出店不可業種 飲食全般 引渡し 相談 管理人 取引態様 仲介 物件No 設備・特徴 - 幹線道路沿い
- スケルトン
- 路面店
備考 福岡で1986年創業!テナント専門の弊社に貸店舗・事務所のことは何でもお任せください! 居抜き物件・非公開物件多数ございます! 新着情報も豊富です!開店・移転・増店・居抜き売却はお気軽にお問い合わせください! 主な周辺施設色がついているアイコンをクリックすると、本物件までの道順を見ることができます。
-
※連合隊は物件情報の精度向上に努めています:「物件情報に誤りがある」「成約済みである」などお気付きの点がございましたらこちらよりご連絡ください。
写真枚数:14枚
福岡近郊の不動産のことなら何でもご相談ください!地域に密着した情報力で理想の物件をお探しいたします!
早良区西新で昭和60年に創業以来、居抜き物件・空店舗を中心に数多くのご依頼を頂いております!住居情報も充実しております。ご相談、ご質問などお気軽にご連絡下さいませ!!