ユース福岡ビル
ここに注目!1フロア1テナント!駐車場1台契約可能!
居抜き物件・未公開物件多数あります!こちらよりHPにアクセスください!
この物件の契約期間は 3年間です。
定期借家物件は、賃貸借契約期間満了後、原則として契約の更新ができない物件です。再契約の可否については不動産会社にお問合せください。
| 賃料・費用 |
79万8,798円
(+管理費等 -円)
坪単価:約1.4万円/坪
敷363万900円礼79万8,798円(1ヶ月)仲79万8,798円
|
|---|---|
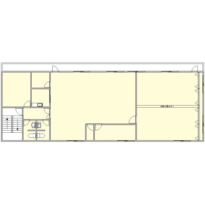
| 専有面積 | 184.68m² (55.86坪) |
| 住所 | 福岡県福岡市博多区博多駅東1-7-5 |
| 交通 | 博多駅(徒歩7分)|祇園駅(徒歩12分)|東比恵駅(徒歩16分)道順を見る |
| 階/階建 | 3階 / 3階建 |
| 築年月 | 築25年(2000年4月) |
| 駐車場 |
あり (2万7,500円/台)
|
空室確認、見学、詳細を知りたい方はこちら!
お電話の際は「連合隊の物件」とお伝えください。
情報掲載期限:あと24日(更新日 2025/12/15)
- 物件写真・概要
- 周辺地図
-
空室確認、見学、詳細を知りたい方はこちら!
おすすめポイント
- 駐車場あり
交通色がついているアイコンをクリックすると、本物件までの道順を見ることができます。
- 博多駅九州新幹線、JR博多南線、福北ゆたか線、福岡市営地下鉄空港線、福岡市営地下鉄七隈線、山陽新幹線、JR鹿児島本線徒歩7分(約499m)
- 祇園駅福岡市営地下鉄空港線徒歩12分(約904m)
- 東比恵駅福岡市営地下鉄空港線徒歩16分(約1.3km)
物件概要
所在階/建物の階建 3階 / 地上3階建 主要採光面 構造 鉄骨造 間取り 契約期間 定期借家(3年間) 権利金 住宅保険 引渡し 相談 管理人 取引態様 仲介 物件No 設備・特徴 備考 福岡で1986年創業!テナント専門の弊社に貸店舗・事務所のことは何でもお任せください! 居抜き物件・非公開物件多数ございます! 新着情報も豊富です!開店・移転・増店・居抜き売却はお気軽にお問い合わせください! 主な周辺施設色がついているアイコンをクリックすると、本物件までの道順を見ることができます。
-
※連合隊は物件情報の精度向上に努めています:「物件情報に誤りがある」「成約済みである」などお気付きの点がございましたらこちらよりご連絡ください。
写真枚数:4枚
福岡近郊の不動産のことなら何でもご相談ください!地域に密着した情報力で理想の物件をお探しいたします!
早良区西新で昭和60年に創業以来、居抜き物件・空店舗を中心に数多くのご依頼を頂いております!住居情報も充実しております。ご相談、ご質問などお気軽にご連絡下さいませ!!