ベルツーワン事務所
ここに注目!駐車場10台付!
居抜き物件・未公開物件多数あります!こちらよりHPにアクセスください!
| 賃料・費用 |
77万円
(+管理費等 -円)
坪単価:約1.0万円/坪
敷210万円礼77万円(1ヶ月)仲77万円
|
|---|---|
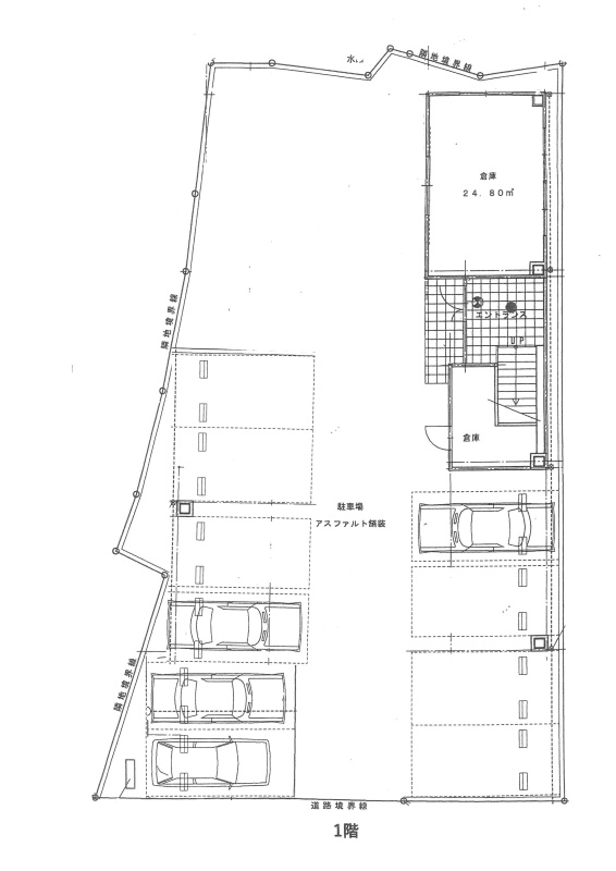
| 専有面積 | 254.02m² (76.84坪) |
| 住所 | 福岡県福岡市博多区西月隈3-1-39 |
| 交通 | |
| 階/階建 | 1階 / 2階建 |
| 築年月 | 築20年(2005年2月) |
| 駐車場 |
あり
|
空室確認、見学、詳細を知りたい方はこちら!
お電話の際は「連合隊の物件」とお伝えください。
情報掲載期限:あと30日(更新日 2025/12/15)
- 物件写真・概要
- 周辺地図
-
空室確認、見学、詳細を知りたい方はこちら!
おすすめポイント
- 駐車場あり
物件概要
所在階/建物の階建 1階 / 地上2階建 主要採光面 構造 鉄骨造 間取り 契約期間 1年間 権利金 住宅保険 引渡し 相談 管理人 取引態様 仲介 物件No 設備・特徴 備考 福岡で1986年創業!テナント専門の弊社に貸店舗・事務所のことは何でもお任せください! 居抜き物件・非公開物件多数ございます! 新着情報も豊富です!開店・移転・増店・居抜き売却はお気軽にお問い合わせください! 主な周辺施設色がついているアイコンをクリックすると、本物件までの道順を見ることができます。
-
※連合隊は物件情報の精度向上に努めています:「物件情報に誤りがある」「成約済みである」などお気付きの点がございましたらこちらよりご連絡ください。
写真枚数:3枚
福岡近郊の不動産のことなら何でもご相談ください!地域に密着した情報力で理想の物件をお探しいたします!
早良区西新で昭和60年に創業以来、居抜き物件・空店舗を中心に数多くのご依頼を頂いております!住居情報も充実しております。ご相談、ご質問などお気軽にご連絡下さいませ!!