エフビル
ここに注目!百年橋通り沿いの大型オフィスビル・屋上に緑の 芝生でおおわれたルーフガーデンがあり、リフレッシュに最適!
| 賃料・費用 |
273万1,360円
(+管理費等 59万7,485円)
坪単価:約1.6万円/坪
敷2,979万6,655円仲273万1,360円
|
|---|---|
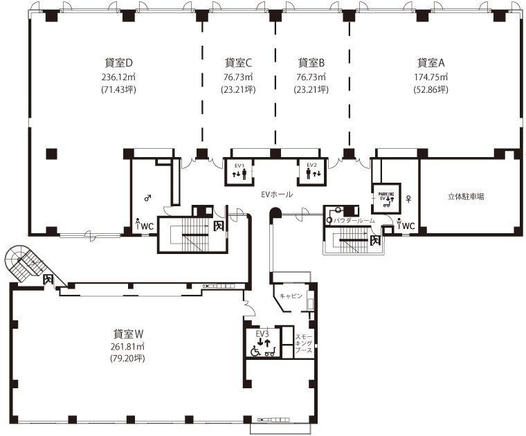
| 専有面積 | 564.33m² (170.7坪) |
| 住所 | 福岡県福岡市博多区博多駅東3-13-21 |
| 交通 | 東比恵駅(徒歩6分)|博多駅(徒歩11分)|祇園駅(徒歩22分)|櫛田神社前駅(徒歩26分)|呉服町駅(徒歩30分) |
| 階/階建 | 4階 / 8階建 |
| 築年月 | 築33年(1992年8月) |
| 駐車場 |
あり (2万7,500円/台)
|
空室確認、見学、詳細を知りたい方はこちら!
お電話の際は「連合隊の物件」とお伝えください。
情報掲載期限:あと28日(更新日 2025/12/23)
- 物件写真・概要
- 周辺地図
-
空室確認、見学、詳細を知りたい方はこちら!
おすすめポイント
- 即入居可
- 複数路線利用可
- 駐車場あり
- エアコン付
- 光ファイバー
交通色がついているアイコンをクリックすると、本物件までの道順を見ることができます。
- 東比恵駅福岡市営地下鉄空港線徒歩6分(約465m)
- 博多駅九州新幹線、JR博多南線、福北ゆたか線、福岡市営地下鉄空港線、福岡市営地下鉄七隈線、山陽新幹線、JR鹿児島本線徒歩11分(約871m)
- 祇園駅福岡市営地下鉄空港線徒歩22分(約1.8km)
- 櫛田神社前駅福岡市営地下鉄七隈線徒歩26分(約2.1km)
- 呉服町駅福岡市営地下鉄箱崎線徒歩30分(約2.4km)
物件概要
所在階/建物の階建 4階 / 地上8階建 主要採光面 構造 鉄骨鉄筋コンクリート(SRC)造 間取り 契約期間 2年間 権利金 住宅保険 引渡し 即時 管理人 取引態様 仲介 物件No gm070409 設備・特徴 - 複数路線利用可
- エアコン付
- 個別空調
- ブロードバンド回線(光ファイバー等の高速インターネット)
備考 福岡で1986年創業!テナント専門の弊社に貸店舗・事務所のことは何でもお任せください! 居抜き物件・非公開物件多数ございます! 新着情報も豊富です!開店・移転・増店・居抜き売却はお気軽にお問い合わせください! 主な周辺施設色がついているアイコンをクリックすると、本物件までの道順を見ることができます。
-
※連合隊は物件情報の精度向上に努めています:「物件情報に誤りがある」「成約済みである」などお気付きの点がございましたらこちらよりご連絡ください。
写真枚数:3枚
福岡近郊の不動産のことなら何でもご相談ください!地域に密着した情報力で理想の物件をお探しいたします!
早良区西新で昭和60年に創業以来、居抜き物件・空店舗を中心に数多くのご依頼を頂いております!住居情報も充実しております。ご相談、ご質問などお気軽にご連絡下さいませ!!