店舗・事務所(区分)|テナント
volare西新
ここに注目!重飲食相談可能です!サービス業ご相談ください!
居抜き物件・未公開物件多数あります!こちらよりHPにアクセスください!
| 賃料・費用 |
34万5,510円
(+管理費等 -円)
坪単価:約2.0万円/坪
敷62万8,200円礼31万4,100円仲34万5,510円
|
|---|---|
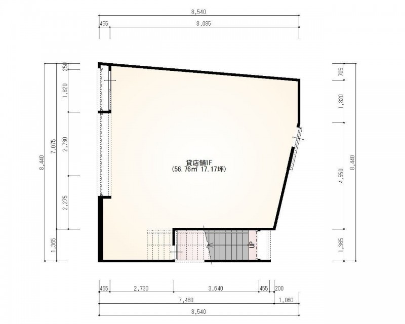
| 専有面積 | 57.69m² (17.45坪) |
| 住所 | 福岡県福岡市早良区西新1-3-10 |
| 交通 | 西新駅(徒歩5分)|唐人町駅(徒歩14分)|藤崎駅(徒歩19分) |
| 階/階建 | 路面 / 2階建 |
| 築年月 | 築1年(2025年3月) |
| 駐車場 |
なし
|
空室確認、見学、詳細を知りたい方はこちら!
お電話の際は「ホームページを見て」とお伝えください。
092-841-4188
情報掲載期限:あと29日(更新日 2026/5/25)
- 物件写真・概要
- 周辺地図
-
空室確認、見学、詳細を知りたい方はこちら!
おすすめポイント
- 路面店
- 駅徒歩5分以内
- 商店街に面す
- スケルトン
- 出店するなら…この業種がおすすめ!
- 飲食全般(重飲食含む)

- 喫茶・カフェ(軽飲食)

- バー・クラブ・スナック

- 小売・物販

- 美容・健康・介護

- 医療

- 教育・スクール

- 事務所

- アミューズメント

交通色がついているアイコンをクリックすると、本物件までの道順を見ることができます。
物件概要
所在階/建物の階建 2階 / 地上2階建 主要採光面 構造 木造 間取り 契約期間 2年間 権利金 住宅保険 出店推奨業種 飲食全般(重飲食含む)、喫茶・カフェ(軽飲食)、美容・健康・介護 出店不可業種 引渡し 相談 管理人 取引態様 仲介 物件No 設備・特徴 - 商店街に面す
- スケルトン
- 路面店
備考 福岡で1986年創業!テナント専門の弊社に貸店舗・事務所のことは何でもお任せください! 居抜き物件・非公開物件多数ございます! 新着情報も豊富です!開店・移転・増店・居抜き売却はお気軽にお問い合わせください! 主な周辺施設色がついているアイコンをクリックすると、本物件までの道順を見ることができます。
-
写真枚数:4枚
福岡近郊の不動産のことなら何でもご相談ください!地域に密着した情報力で理想の物件をお探しいたします!
早良区西新で昭和60年に創業以来、居抜き物件・空店舗を中心に数多くのご依頼を頂いております!住居情報も充実しております。ご相談、ご質問などお気軽にご連絡下さいませ!!