PFDビル
ここに注目!「呉服町」駅まで徒歩3分!!
居抜き物件・未公開物件多数あります!こちらよりHPにアクセスください!
この物件の契約期間は 5年間です。
定期借家物件は、賃貸借契約期間満了後、原則として契約の更新ができない物件です。再契約の可否については不動産会社にお問合せください。
| 賃料・費用 |
11万円
(+管理費等 -円)
坪単価:約4,693円/坪
仲11万円
|
|---|---|
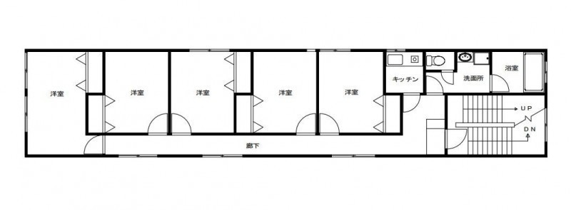
| 専有面積 | 77.49m² (23.44坪) |
| 住所 | 福岡県福岡市博多区店屋町1-11 |
| 交通 | 呉服町駅(徒歩5分)|祇園駅(徒歩7分)|中洲川端駅(徒歩7分)|櫛田神社前駅(徒歩9分)|千代県庁口駅(徒歩12分) |
| 階/階建 | 4階建 |
| 築年月 | 築54年(1971年2月) |
| 駐車場 |
なし
|
空室確認、見学、詳細を知りたい方はこちら!
お電話の際は「連合隊の物件」とお伝えください。
情報掲載期限:あと24日(更新日 2025/12/23)
- 物件写真・概要
- 周辺地図
-
空室確認、見学、詳細を知りたい方はこちら!
おすすめポイント
- 駅徒歩5分以内
- 出店するなら…この業種がおすすめ!
- 飲食全般(重飲食含む)

- 喫茶・カフェ(軽飲食)

- バー・クラブ・スナック

- 小売・物販

- 美容・健康・介護

- 医療

- 教育・スクール

- 事務所

- アミューズメント

交通色がついているアイコンをクリックすると、本物件までの道順を見ることができます。
- 呉服町駅福岡市営地下鉄箱崎線徒歩5分(約340m)
- 祇園駅福岡市営地下鉄空港線徒歩7分(約501m)
- 中洲川端駅福岡市営地下鉄箱崎線、福岡市営地下鉄空港線徒歩7分(約546m)
- 櫛田神社前駅福岡市営地下鉄七隈線徒歩9分(約713m)
- 千代県庁口駅福岡市営地下鉄箱崎線徒歩12分(約929m)
物件概要
所在階/建物の階建 地上4階建 主要採光面 構造 鉄骨造 間取り 契約期間 定期借家(5年間) 権利金 住宅保険 出店推奨業種 教育・スクール、事務所 出店不可業種 引渡し 管理人 取引態様 仲介 物件No 設備・特徴 備考 ・民泊NG ・スケルトン契約・現状渡し ・5年定期借家契約 ・10人を超える事務所としての使用等、業種によっては消防法の制限を受ける場合があります。事前に消防署へご確認ください。 ・浴室は使用できません ・短期解約違約金(1年未満:賃料1ヶ月) ・保証会社:ジェイリース 主な周辺施設色がついているアイコンをクリックすると、本物件までの道順を見ることができます。
-
※連合隊は物件情報の精度向上に努めています:「物件情報に誤りがある」「成約済みである」などお気付きの点がございましたらこちらよりご連絡ください。
写真枚数:14枚
福岡近郊の不動産のことなら何でもご相談ください!地域に密着した情報力で理想の物件をお探しいたします!
早良区西新で昭和60年に創業以来、居抜き物件・空店舗を中心に数多くのご依頼を頂いております!住居情報も充実しております。ご相談、ご質問などお気軽にご連絡下さいませ!!