オフィスパレア御笠川15
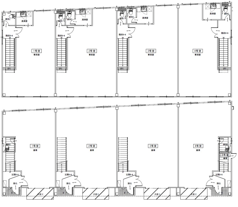
ここに注目!オフィスパレア御笠川15 倉庫付事務所は、福岡県大野城市御笠川に位置する、広々とした153.58㎡!1階:22.09坪・2階:24.36坪の倉庫付事務所です!事業拡大や新規拠点をお考えの企業様にぴったりの物件です。 西鉄天神大牟田線 白木原駅まで徒歩12分。周辺にはホームセンターや飲食店、銀行、郵便局などが揃い、ビジネスをサポートする環境が充実しています。 準工業地域にあり、多様な事業展開に対応可能です。敷地内には無料駐車場が7台分確保されており、車両でのアクセスもスムーズです。 事務所スペースにはOAフロア、給湯、ウォシュレット付の男女別トイレ、照明器具、給排水設備を完備。昇降グリル対応のエアコンも設置されており、快適な執務環境をサポートします。 充実の設備と利便性を兼ね備えたこの物件で、新たなビジネスをスタートしませんか?詳細はお気軽にお問い合わせください。
| 賃料・費用 |
42万9,000円
(+管理費等 -円)
坪単価:約9,236円/坪
敷234万円仲42万9,000円
|
|---|---|
| 専有面積 | 153.58m² (46.45坪) |
| 住所 | 福岡県大野城市御笠川3-3-15 |
| 交通 | 白木原駅(徒歩12分)|大野城駅(徒歩21分)|春日原駅(徒歩24分)道順を見る |
| 階/階建 | 1階 / 1階建 |
| 築年月 | 築1年未満(2025年12月) |
| 駐車場 |
あり 駐車可能台数:7台
|
空室確認、見学、詳細を知りたい方はこちら!
お電話の際は「連合隊の物件」とお伝えください。
情報掲載期限:あと27日(更新日 2025/12/6)
- 物件写真・概要
- 周辺地図
-
空室確認、見学、詳細を知りたい方はこちら!
おすすめポイント
- 駐車2台以上可
- 事務所付
- 出店するなら…この業種がおすすめ!
- 飲食全般(重飲食含む)

- 喫茶・カフェ(軽飲食)

- バー・クラブ・スナック

- 小売・物販

- 美容・健康・介護

- 医療

- 教育・スクール

- 事務所

- アミューズメント

その他…倉庫付事務所
※出店不可の業種:飲食全般
交通色がついているアイコンをクリックすると、本物件までの道順を見ることができます。
物件概要
所在階/建物の階建 1階(2) / 地上1階建 主要採光面 構造 鉄骨造 間取り 契約期間 5年間 権利金 住宅保険 出店推奨業種 事務所、その他(倉庫付事務所) 出店不可業種 飲食全般 用途地域 - 準工業地域
その他費用 毎月の費用 - 警備保障料:1万3,200円
引渡し 2025年12月下旬 管理人 取引態様 仲介 物件No 設備・特徴 - 照明器具付
- 給排水設備
- 事務所付
備考 給湯 エアコン(昇降グリル対応) ウォシュレット付 OAフロア 24時間セキュリティー 男女別トイレ 主な周辺施設色がついているアイコンをクリックすると、本物件までの道順を見ることができます。
-
ホームページはこちら福岡県知事 (9) 第10514号
パシフィックジャパン(株)
※連合隊は物件情報の精度向上に努めています:「物件情報に誤りがある」「成約済みである」などお気付きの点がございましたらこちらよりご連絡ください。
写真枚数:3枚
住居、オフィス、店舗、倉庫等あらゆる物件に関して、豊富な情報と不動産相場に基づいた調査、分析により、的確な物件紹介を行います。まずは、お気軽にお電話下さい。