オフィスパレア筑紫野Ⅶ
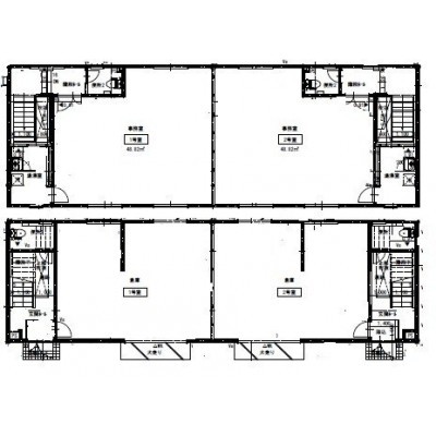
ここに注目!オフィスパレア筑紫野Ⅶに空き予定が出ました!倉庫付事務所 1F:58㎡/17.54坪 2F事務所:68㎡/20.57坪 計126㎡/38.11坪 駐車場8台家賃込です! お気軽にお問合せ下さい!
| 賃料・費用 |
25万3,000円
(+管理費等 -円)
坪単価:約6,639円/坪
敷138万円仲25万3,000円
|
|---|---|
| 専有面積 | 126m² (38.11坪) |
| 住所 | 福岡県筑紫野市塔原東4丁目15-13 |
| 交通 | 都府楼南駅(徒歩13分)|西鉄二日市駅(徒歩18分)道順を見る |
| 階/階建 | 1階 / 2階建 |
| 築年月 | 築2年(2023年11月) |
| 駐車場 |
あり 駐車可能台数:8台
A棟1号:8台(うち小型2台) |
空室確認、見学、詳細を知りたい方はこちら!
お電話の際は「連合隊の物件」とお伝えください。
情報掲載期限:あと30日(更新日 2026/2/27)
- 物件写真・概要
- 周辺地図
-
空室確認、見学、詳細を知りたい方はこちら!
おすすめポイント
- 駐車2台以上可
- 事務所付
- 出店するなら…この業種がおすすめ!
- 飲食全般(重飲食含む)

- 喫茶・カフェ(軽飲食)

- バー・クラブ・スナック

- 小売・物販

- 美容・健康・介護

- 医療

- 教育・スクール

- 事務所

- アミューズメント

その他…倉庫付事務所
※出店不可の業種:飲食全般
交通色がついているアイコンをクリックすると、本物件までの道順を見ることができます。
物件概要
所在階/建物の階建 1階(Aー1) / 地上2階建 主要採光面 構造 木造 間取り 契約期間 5年間 権利金 住宅保険 出店推奨業種 事務所、その他(倉庫付事務所) 出店不可業種 飲食全般 用途地域 - 第1種住居地域
その他費用 毎月の費用 - 警備保障料:1万3,200円
引渡し 相談 管理人 無 取引態様 仲介 物件No 設備・特徴 - 照明器具付
- 給排水設備
- 事務所付
備考 給湯 エアコン(昇降グリル対応) OAフロア24時間セキュリティー 男女別トイレ 駐車場家賃込 主な周辺施設色がついているアイコンをクリックすると、本物件までの道順を見ることができます。
-
ホームページはこちら福岡県知事 (9) 第10514号
パシフィックジャパン(株)
※連合隊は物件情報の精度向上に努めています:「物件情報に誤りがある」「成約済みである」などお気付きの点がございましたらこちらよりご連絡ください。
写真枚数:5枚
住居、オフィス、店舗、倉庫等あらゆる物件に関して、豊富な情報と不動産相場に基づいた調査、分析により、的確な物件紹介を行います。まずは、お気軽にお電話下さい。