オフィスパレア那珂川Ⅳ
ここに注目!人気の倉庫付き事務所オフィスパレアシリーズ那珂川町に空き予定が出ました!スタイリッシュな外観におしゃれな事務所内!お気軽にお問合せ下さい!
| 賃料・費用 |
28万6,000円
(+管理費等 -円)
坪単価:約7,581円/坪
敷156万円仲28万6,000円
|
|---|---|
| 専有面積 | 124.73m² (37.73坪) |
| 住所 | 福岡県那珂川市中原5丁目45 |
| 交通 | 博多南駅(徒歩13分)道順を見る |
| 階/階建 | 1階 / 2階建 |
| 築年月 | 築3年(2022年6月) |
| 駐車場 |
あり 駐車可能台数:6台
|
空室確認、見学、詳細を知りたい方はこちら!
お電話の際は「連合隊の物件」とお伝えください。
情報掲載期限:あと28日(更新日 2026/5/16)
- 物件写真・概要
- 周辺地図
-
空室確認、見学、詳細を知りたい方はこちら!
おすすめポイント
- 駐車2台以上可
- 男女別トイレ
- エアコン付
- OAフロア
交通色がついているアイコンをクリックすると、本物件までの道順を見ることができます。
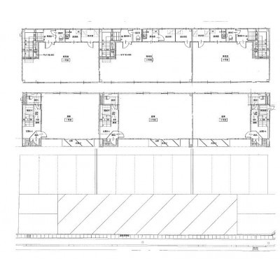
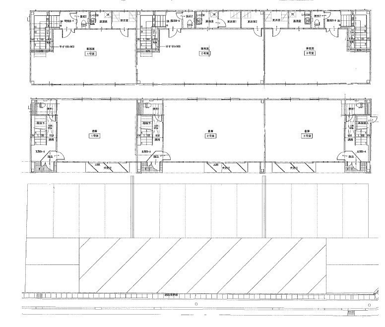
物件概要
所在階/建物の階建 1階(1) / 地上2階建 主要採光面 構造 鉄骨造 間取り 契約期間 5年間 権利金 住宅保険 用途地域 - 第1種住居地域
その他費用 毎月の費用 - 警備保障料:1万3,200円
引渡し 相談(8月引渡し予定) 管理人 無 取引態様 仲介 物件No 設備・特徴 - 照明器具付
- OAフロア
- 給排水設備
- エアコン付
- 個別空調
- 24時間利用可
- 男女別トイレ
備考 1階:57.42㎡/17.36坪 2階:67.32㎡/20.36坪 給湯 エアコン 男女別トイレ(ウォシュレット付)OAフロア 24時間セキュリティー 主な周辺施設色がついているアイコンをクリックすると、本物件までの道順を見ることができます。
-
ホームページはこちら福岡県知事 (9) 第10514号
パシフィックジャパン(株)
※連合隊は物件情報の精度向上に努めています:「物件情報に誤りがある」「成約済みである」などお気付きの点がございましたらこちらよりご連絡ください。
写真枚数:7枚
住居、オフィス、店舗、倉庫等あらゆる物件に関して、豊富な情報と不動産相場に基づいた調査、分析により、的確な物件紹介を行います。まずは、お気軽にお電話下さい。