船越事務所
ここに注目!一棟貸事務所!大型車駐車可能!1階:47.29坪 2階:48.02坪! 福岡都市高速水城車10分 九州自動車道大宰府IC 車10分 お気軽にお問合せ下さい!
| 賃料・費用 |
88万円
(+管理費等 -円)
坪単価:約9,234円/坪
敷480万円仲88万円
|
|---|---|
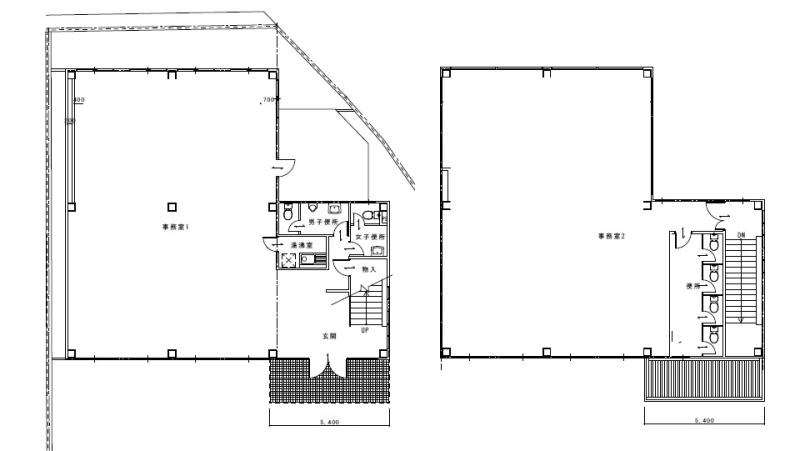
| 専有面積 | 315.08m² (95.31坪) |
| 住所 | 福岡県大野城市御笠川5-6-12 |
| 交通 | 春日原駅(徒歩22分)|春日駅(徒歩30分)道順を見る |
| 階/階建 | |
| 築年月 | 築36年(1990年3月) |
| 駐車場 |
あり 駐車可能台数:10台
10台以上 |
空室確認、見学、詳細を知りたい方はこちら!
お電話の際は「連合隊の物件」とお伝えください。
新着 情報掲載期限:あと30日(更新日 2026/3/2)
- 物件写真・概要
- 周辺地図
-
空室確認、見学、詳細を知りたい方はこちら!
おすすめポイント
- 駐車2台以上可
- 男女別トイレ
- エアコン付
交通色がついているアイコンをクリックすると、本物件までの道順を見ることができます。
物件概要
建物の階建 総戸数 構造 鉄骨造 間取り 契約期間 5年間 権利金 住宅保険 土地面積 1011.58m² (306坪)用途地域 - 準工業地域
引渡し 相談 管理人 取引態様 仲介 物件No 設備・特徴 - 給排水設備
- 個別空調
- エアコン付
- 男女別トイレ
備考 給湯 エアコン トイレ(男女別) 主な周辺施設色がついているアイコンをクリックすると、本物件までの道順を見ることができます。
-
ホームページはこちら福岡県知事 (9) 第10514号
パシフィックジャパン(株)
※連合隊は物件情報の精度向上に努めています:「物件情報に誤りがある」「成約済みである」などお気付きの点がございましたらこちらよりご連絡ください。
写真枚数:3枚
住居、オフィス、店舗、倉庫等あらゆる物件に関して、豊富な情報と不動産相場に基づいた調査、分析により、的確な物件紹介を行います。まずは、お気軽にお電話下さい。