舞松原2丁目店舗
ここに注目!一棟貸店舗!居抜料金無し!什器備品造作物や厨房器具等は全て無償貸与品となります。1階には小上がり席とカウンター席!2階は宴会場!3階は個室4部屋!エレベーターも完備!お気軽にお問い合わせください。
この物件は 居酒屋 寿司屋 の居抜き物件です。
現状の設備が残されたまま取引されるため、初期費用を抑え速やかに事業を開始できるメリットがあります。
| 賃料・費用 |
36万3,000円
(+管理費等 -円)
坪単価:約4,872円/坪
敷66万円礼33万円仲36万3,000円
|
|---|---|
| 専有面積 | 246.35m² (74.52坪) |
| 住所 | 福岡県福岡市東区舞松原2-14-21 |
| 交通 | 千早駅(徒歩11分)|香椎神宮駅(徒歩15分)|舞松原駅(徒歩16分)道順を見る |
| 階/階建 | 3階建 |
| 築年月 | 築50年(1976年1月) |
| 駐車場 |
なし
|
空室確認、見学、詳細を知りたい方はこちら!
お電話の際は「連合隊の物件」とお伝えください。
新着 情報掲載期限:あと29日(更新日 2026/1/27)
- 物件写真・概要
- 周辺地図
-
空室確認、見学、詳細を知りたい方はこちら!
おすすめポイント
- 造作譲渡料無料
- 出店するなら…この業種がおすすめ!
- 飲食全般(重飲食含む)

- 喫茶・カフェ(軽飲食)

- バー・クラブ・スナック

- 小売・物販

- 美容・健康・介護

- 医療

- 教育・スクール

- 事務所

- アミューズメント

交通色がついているアイコンをクリックすると、本物件までの道順を見ることができます。
物件概要
建物の階建 地上3階建 総戸数 構造 鉄骨造 間取り 契約期間 2年間 権利金 住宅保険 出店推奨業種 飲食全般(重飲食含む) 出店不可業種 居抜き情報 [居酒屋、寿司屋] の居抜き造作譲渡料 無料 特記事項 什器備品造作物厨房器具等 無償貸与品 用途地域 - 第1種住居地域
引渡し 相談 管理人 取引態様 仲介 物件No 設備・特徴 - エレベーター
- 給排水設備
- ガス設備
- 個別空調
- 男女別トイレ
備考 什器備品造作物厨房器具等 無償貸与品(生簀は現在使用できません。) 現状渡し 小荷物昇降機有 グリストラップ有 2階・3階にパントリー有 主な周辺施設色がついているアイコンをクリックすると、本物件までの道順を見ることができます。
-
ホームページはこちら福岡県知事 (9) 第10514号
パシフィックジャパン(株)
※連合隊は物件情報の精度向上に努めています:「物件情報に誤りがある」「成約済みである」などお気付きの点がございましたらこちらよりご連絡ください。
写真枚数:9枚
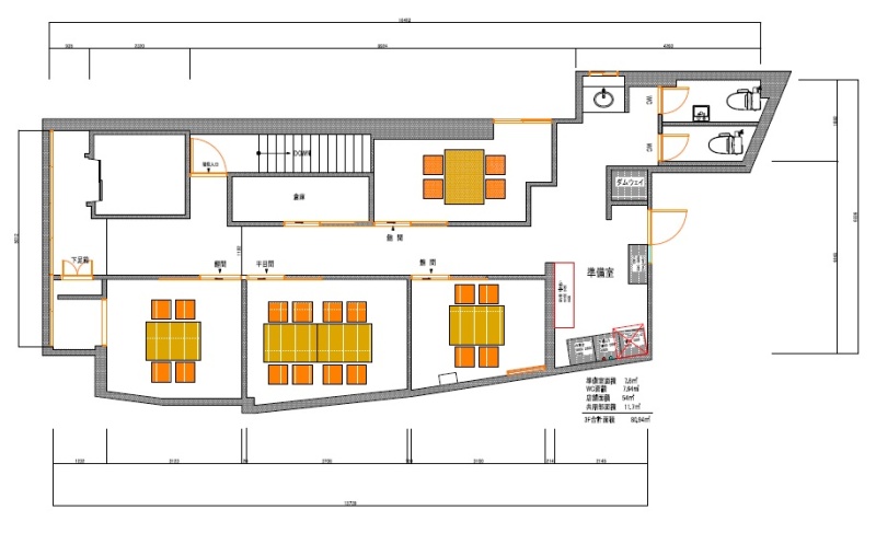
1階平面図
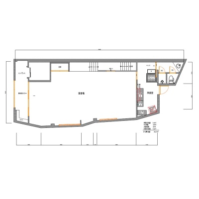
2階平面図
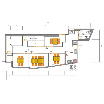
3階平面図
住居、オフィス、店舗、倉庫等あらゆる物件に関して、豊富な情報と不動産相場に基づいた調査、分析により、的確な物件紹介を行います。まずは、お気軽にお電話下さい。