オフィスストレージ博多南Ⅰ
ここに注目!福岡市博多区麦野に新しいビジネスの拠点にぴったりの「オフィスストレージ博多南Ⅰ」が現在建築中です!2026年6月竣工予定の物件です。 こちらの物件は倉庫事務所としてご利用可能で、無料駐車場が10台も家賃に含まれているのが嬉しいポイント。1階:42.3坪・2階:45坪!お気軽にお問い合わせください。
| 賃料・費用 |
115万5,000円
(+管理費等 -円)
坪単価:約1.3万円/坪
敷630万円仲115万5,000円
|
|---|---|
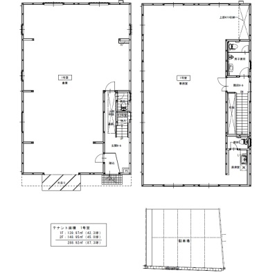
| 専有面積 | 288.92m² (87.39坪) |
| 住所 | 福岡県福岡市博多区麦野6-22-1 |
| 交通 | 雑餉隈駅(徒歩8分)|桜並木駅(徒歩9分)|南福岡駅(徒歩15分)道順を見る |
| 階/階建 | 1階 / 2階建 |
| 築年月 | 建築中(2026年6月完成予定) |
| 駐車場 |
あり 駐車可能台数:10台
10台家賃込 |
空室確認、見学、詳細を知りたい方はこちら!
お電話の際は「連合隊の物件」とお伝えください。
情報掲載期限:あと29日(更新日 2026/1/31)
- 物件写真・概要
- 周辺地図
-
空室確認、見学、詳細を知りたい方はこちら!
おすすめポイント
- 駐車2台以上可
- 事務所付
- 出店するなら…この業種がおすすめ!
- 飲食全般(重飲食含む)

- 喫茶・カフェ(軽飲食)

- バー・クラブ・スナック

- 小売・物販

- 美容・健康・介護

- 医療

- 教育・スクール

- 事務所

- アミューズメント

その他…倉庫事務所
交通色がついているアイコンをクリックすると、本物件までの道順を見ることができます。
物件概要
所在階/建物の階建 1階 / 地上2階建 主要採光面 構造 木造 間取り 契約期間 5年間 権利金 住宅保険 出店推奨業種 事務所、その他(倉庫事務所) 出店不可業種 用途地域 - 準工業地域
その他費用 毎月の費用 - 警備保障料:2万7,500円
引渡し 2026年6月中旬(建築中) 管理人 無 取引態様 仲介 物件No 設備・特徴 - 照明器具付
- 給排水設備
- 事務所付
備考 オール電化 24時間警備 専用駐車場 男女別トイレ洗浄便座 エアコン TVモニターホン 主な周辺施設色がついているアイコンをクリックすると、本物件までの道順を見ることができます。
-
ホームページはこちら福岡県知事 (9) 第10514号
パシフィックジャパン(株)
※連合隊は物件情報の精度向上に努めています:「物件情報に誤りがある」「成約済みである」などお気付きの点がございましたらこちらよりご連絡ください。
写真枚数:2枚
住居、オフィス、店舗、倉庫等あらゆる物件に関して、豊富な情報と不動産相場に基づいた調査、分析により、的確な物件紹介を行います。まずは、お気軽にお電話下さい。