MG薬院
居抜き物件・未公開物件多数あります!こちらよりHPにアクセスください!
この物件の契約期間は 3年間です。
定期借家物件は、賃貸借契約期間満了後、原則として契約の更新ができない物件です。再契約の可否については不動産会社にお問合せください。
| 賃料・費用 |
305万6,328円
(+管理費等 -円)
坪単価:約1.9万円/坪
敷3,334万1,760円礼なし仲305万6,328円
保証金:なし
|
|---|---|
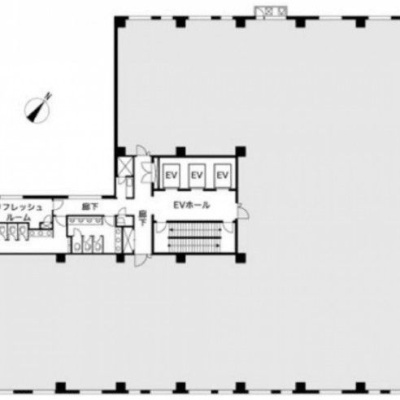
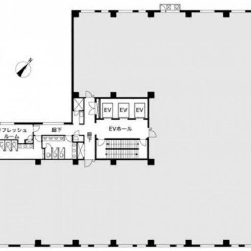
| 専有面積 | 540.29m² (163.43坪) |
| 住所 | 福岡県福岡市中央区薬院1-14 |
| 交通 | 薬院駅(徒歩6分)道順を見る |
| 階/階建 | 4階 / 8階建 |
| 築年月 | 築17年(2008年3月) |
| 駐車場 |
空き待ち
|
空室確認、見学、詳細を知りたい方はこちら!
お電話の際は「連合隊の物件」とお伝えください。
情報掲載期限:あと29日(更新日 2025/12/15)
- 物件写真・概要
- 周辺地図
-
空室確認、見学、詳細を知りたい方はこちら!
交通色がついているアイコンをクリックすると、本物件までの道順を見ることができます。
物件概要
所在階/建物の階建 4階 / 地上8階建 主要採光面 構造 鉄骨造 間取り 契約期間 定期借家(3年間) 権利金 なし 住宅保険 お問合せください 引渡し 2026年3月中旬 管理人 取引態様 仲介 物件No gg071108 設備・特徴 備考 福岡で1986年創業!テナント専門の弊社に貸店舗・事務所のことは何でもお任せください! 居抜き物件・非公開物件多数ございます! 新着情報も豊富です!開店・移転・増店・居抜き売却はお気軽にお問い合わせください! 主な周辺施設色がついているアイコンをクリックすると、本物件までの道順を見ることができます。
-
※連合隊は物件情報の精度向上に努めています:「物件情報に誤りがある」「成約済みである」などお気付きの点がございましたらこちらよりご連絡ください。
写真枚数:2枚
福岡市全域のテナントはもちろん、郊外の物件もお任せください!
昭和60年に創業以来、福岡市内及び近郊の事業用物件を専門に取り扱う不動産会社です。 店舗・居抜・事務所のことなら何でもご相談下さい。 ご相談は無料!まずはお電話下さい!