MG薬院ビル
ここに注目!落ち着いた環境の大型オフィスビル
居抜き物件・未公開物件多数あります!こちらよりHPにアクセスください!
この物件の契約期間は 3年間です。
定期借家物件は、賃貸借契約期間満了後、原則として契約の更新ができない物件です。再契約の可否については不動産会社にお問合せください。
| 賃料・費用 |
96万3,600円
(+管理費等 なし)
坪単価:約1.9万円/坪
敷1,051万2,000円礼なし仲96万3,600円
保証金:なし
|
|---|---|
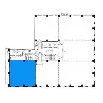
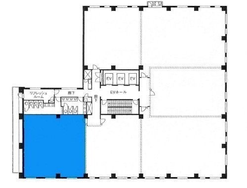
| 専有面積 | 170.35m² (51.53坪) |
| 住所 | 福岡県福岡市中央区薬院1-14-5 |
| 交通 | 薬院駅(徒歩5分)|薬院大通駅(徒歩7分) |
| 階/階建 | 2階 / 8階建 |
| 築年月 | 築17年(2008年3月) |
| 駐車場 |
あり (2万4,200円/台)
|
空室確認、見学、詳細を知りたい方はこちら!
お電話の際は「連合隊の物件」とお伝えください。
情報掲載期限:あと28日(更新日 2025/12/15)
- 物件写真・概要
- 周辺地図
-
空室確認、見学、詳細を知りたい方はこちら!
おすすめポイント
- 駅徒歩5分以内
- 駐車場あり
- 男女別トイレ
- エアコン付
- OAフロア
- 24時間セキュリティー
交通色がついているアイコンをクリックすると、本物件までの道順を見ることができます。
物件概要
所在階/建物の階建 2階 / 地上8階建 主要採光面 構造 鉄骨造 間取り 契約期間 定期借家(3年間) 権利金 なし 住宅保険 引渡し 2025年10月初旬 管理人 取引態様 仲介 物件No gd0706025 設備・特徴 - エレベーター
- 照明器具付
- OAフロア
- 給排水設備
- エアコン付
- 個別空調
- 24時間セキュリティー
- 男女別トイレ
備考 福岡で1986年創業!テナント専門の弊社に貸店舗・事務所のことは何でもお任せください! 居抜き物件・非公開物件多数ございます! 新着情報も豊富です!開店・移転・増店・居抜き売却はお気軽にお問い合わせください! 主な周辺施設色がついているアイコンをクリックすると、本物件までの道順を見ることができます。
-
※連合隊は物件情報の精度向上に努めています:「物件情報に誤りがある」「成約済みである」などお気付きの点がございましたらこちらよりご連絡ください。
写真枚数:4枚
福岡市全域のテナントはもちろん、郊外の物件もお任せください!
昭和60年に創業以来、福岡市内及び近郊の事業用物件を専門に取り扱う不動産会社です。 店舗・居抜・事務所のことなら何でもご相談下さい。 ご相談は無料!まずはお電話下さい!