赤坂セントラルビル
ここに注目!福岡で1986年創業!テナント専門の弊社に貸店舗・事務所のことは何でもお任せください! 居抜き物件・非公開物件多数ございます! 新着情報も豊富です!開店・移転・増店・居抜き売却はお気軽にお問い合わせください!
居抜き物件・未公開物件多数あります!こちらよりHPにアクセスください!
| 賃料・費用 |
59万3,813円
(+管理費等 11万2,343円)
坪単価:約2.0万円/坪
敷647万7,960円礼なし仲59万3,813円
保証金:なし
|
|---|---|
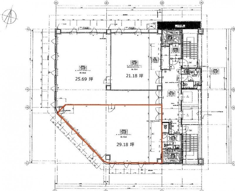
| 専有面積 | 96.46m² (29.17坪) |
| 住所 | 福岡県福岡市中央区大名2-12 |
| 交通 | 赤坂駅(徒歩2分) |
| 階/階建 | 9階 / 9階建 |
| 築年月 | 築1年(2024年1月) |
| 駐車場 |
あり
|
空室確認、見学、詳細を知りたい方はこちら!
お電話の際は「連合隊の物件」とお伝えください。
情報掲載期限:あと28日(更新日 2025/12/15)
- 物件写真・概要
- 周辺地図
-
空室確認、見学、詳細を知りたい方はこちら!
おすすめポイント
- 即入居可
- 駅徒歩3分以内
- 駐車場あり
- エアコン付
- 24時間セキュリティー
交通色がついているアイコンをクリックすると、本物件までの道順を見ることができます。
物件概要
所在階/建物の階建 9階 / 地上9階建 主要採光面 構造 鉄骨造 間取り 契約期間 2年間 権利金 住宅保険 引渡し 即時 管理人 取引態様 仲介 物件No gg070522 設備・特徴 - エレベーター
- エアコン付
- 24時間セキュリティー
- 男女別トイレ(共用部)
備考 主な周辺施設色がついているアイコンをクリックすると、本物件までの道順を見ることができます。
-
※連合隊は物件情報の精度向上に努めています:「物件情報に誤りがある」「成約済みである」などお気付きの点がございましたらこちらよりご連絡ください。
写真枚数:10枚
福岡市全域のテナントはもちろん、郊外の物件もお任せください!
昭和60年に創業以来、福岡市内及び近郊の事業用物件を専門に取り扱う不動産会社です。 店舗・居抜・事務所のことなら何でもご相談下さい。 ご相談は無料!まずはお電話下さい!