福岡天神1丁目ビル
ここに注目!福岡で1986年創業!テナント専門の弊社に貸店舗・事務所のことは何でもお任せください! 居抜き物件・非公開物件多数ございます! 新着情報も豊富です!開店・移転・増店・居抜き売却はお気軽にお問い合わせください!
居抜き物件・未公開物件多数あります!こちらよりHPにアクセスください!
| 賃料・費用 |
78万2,500円
(+管理費等 16万7,673円)
坪単価:約1.5万円/坪
敷853万6,364円礼なし仲78万2,500円
保証金:なし
|
|---|---|
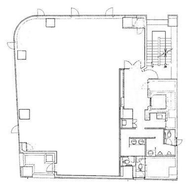
| 専有面積 | 167.97m² (50.81坪) |
| 住所 | 福岡県福岡市中央区天神1-13-17 |
| 交通 | 天神駅(徒歩3分)|西鉄福岡(天神)駅(徒歩7分) |
| 階/階建 | 4階 / 8階建(地下1階) |
| 築年月 | 築37年(1989年3月) |
| 駐車場 |
なし
|
空室確認、見学、詳細を知りたい方はこちら!
お電話の際は「連合隊の物件」とお伝えください。
情報掲載期限:あと21日(更新日 2026/3/27)
- 物件写真・概要
- 周辺地図
-
空室確認、見学、詳細を知りたい方はこちら!
おすすめポイント
- 駅徒歩3分以内
交通色がついているアイコンをクリックすると、本物件までの道順を見ることができます。
物件概要
所在階/建物の階建 4階 / 地上8階 地下1階建 主要採光面 構造 鉄骨鉄筋コンクリート(SRC)造 間取り 契約期間 2年間 権利金 住宅保険 引渡し 相談 管理人 取引態様 仲介 物件No gd0511012 設備・特徴 - エレベーター
備考 福岡で1986年創業!テナント専門の弊社に貸店舗・事務所のことは何でもお任せください! 居抜き物件・非公開物件多数ございます! 新着情報も豊富です!開店・移転・増店・居抜き売却はお気軽にお問い合わせください! 主な周辺施設色がついているアイコンをクリックすると、本物件までの道順を見ることができます。
-
※連合隊は物件情報の精度向上に努めています:「物件情報に誤りがある」「成約済みである」などお気付きの点がございましたらこちらよりご連絡ください。
写真枚数:2枚
福岡市全域のテナントはもちろん、郊外の物件もお任せください!
昭和60年に創業以来、福岡市内及び近郊の事業用物件を専門に取り扱う不動産会社です。 店舗・居抜・事務所のことなら何でもご相談下さい。 ご相談は無料!まずはお電話下さい!