大野城市乙金1丁目倉庫付事務所
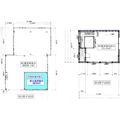
ここに注目! 1階部分:206.7㎡、2階部分:23.04㎡
居抜き物件・未公開物件多数あります!こちらよりHPにアクセスください!
| 賃料・費用 |
30万8,000円
(+管理費等 -円)
坪単価:約4,433円/坪
敷なし礼92万4,000円(3ヶ月)仲30万8,000円
|
|---|---|
| 専有面積 | 229.74m² (69.49坪) |
| 住所 | 福岡県大野城市乙金1-12-32 |
| 交通 | 春日原駅(徒歩29分)道順を見る |
| 階/階建 | 3階建 |
| 築年月 | 築34年(1992年3月) |
| 駐車場 |
あり
|
空室確認、見学、詳細を知りたい方はこちら!
お電話の際は「連合隊の物件」とお伝えください。
新着 情報掲載期限:あと28日(更新日 2026/4/11)
- 物件写真・概要
- 周辺地図
-
空室確認、見学、詳細を知りたい方はこちら!
おすすめポイント
- 駐車場あり
交通色がついているアイコンをクリックすると、本物件までの道順を見ることができます。
物件概要
所在階/建物の階建 地上3階建 主要採光面 構造 鉄骨造 間取り 契約期間 2年間 権利金 住宅保険 引渡し 相談 管理人 取引態様 仲介 物件No 設備・特徴 備考 福岡で1986年創業!テナント専門の弊社に貸店舗・事務所のことは何でもお任せください! 居抜き物件・非公開物件多数ございます! 新着情報も豊富です!開店・移転・増店・居抜き売却はお気軽にお問い合わせください! 主な周辺施設色がついているアイコンをクリックすると、本物件までの道順を見ることができます。
-
※連合隊は物件情報の精度向上に努めています:「物件情報に誤りがある」「成約済みである」などお気付きの点がございましたらこちらよりご連絡ください。
写真枚数:14枚
福岡市全域のテナントはもちろん、郊外の物件もお任せください!
昭和60年に創業以来、福岡市内及び近郊の事業用物件を専門に取り扱う不動産会社です。 店舗・居抜・事務所のことなら何でもご相談下さい。 ご相談は無料!まずはお電話下さい!